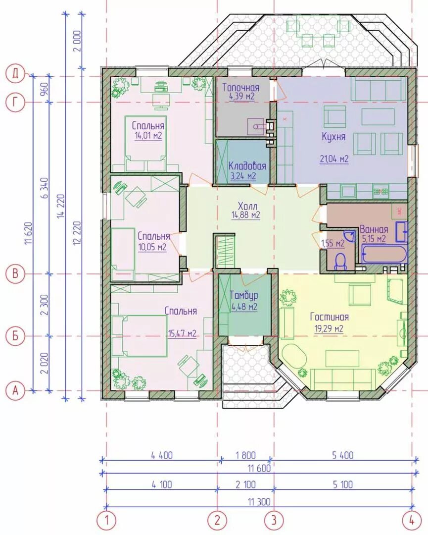
Планы жилых домов одноэтажных