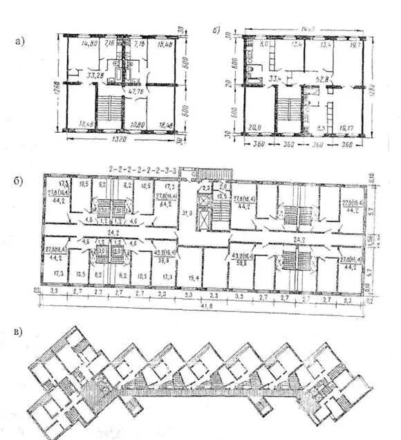
Планировочные решения многоквартирных жилых зданий