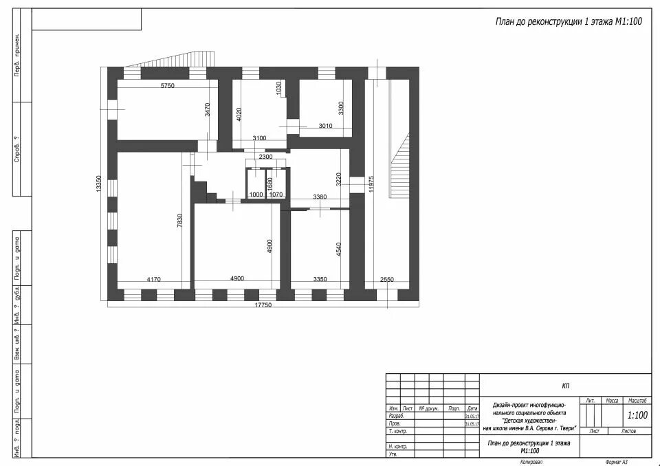
Планирование реконструкции здания