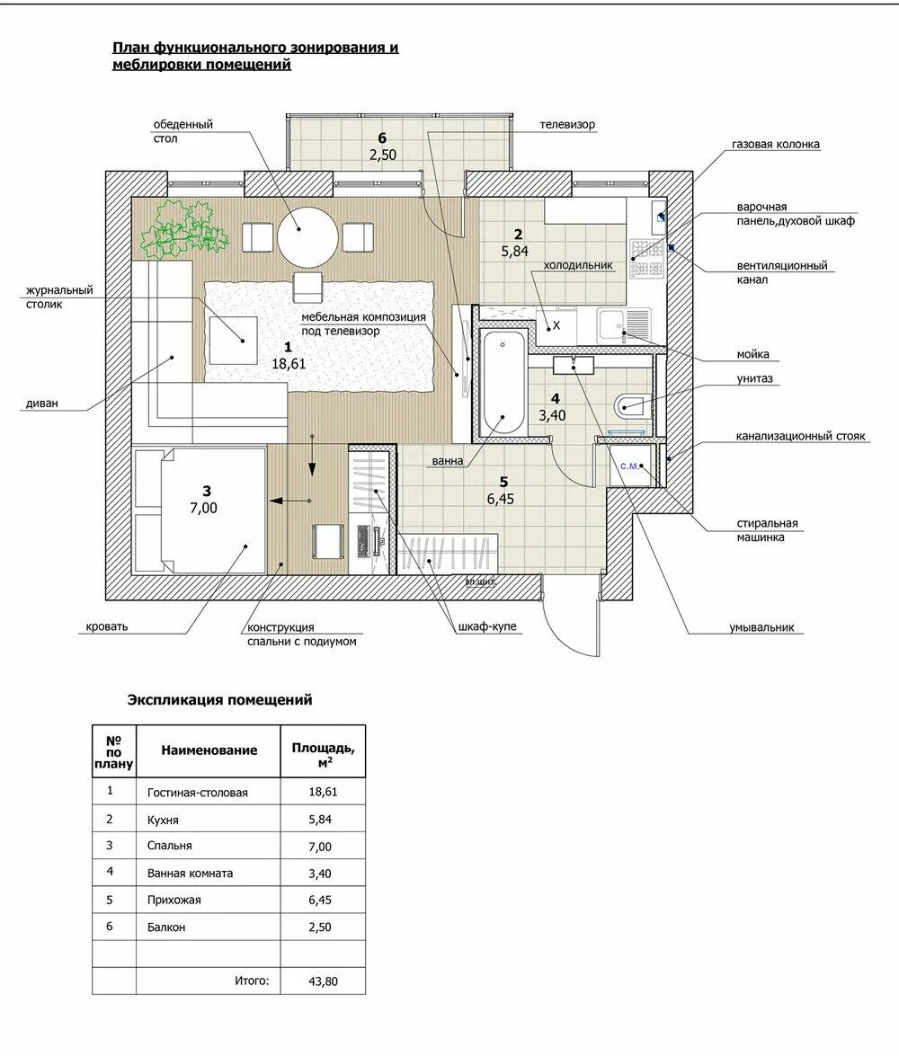
Планирование функциональной зоны