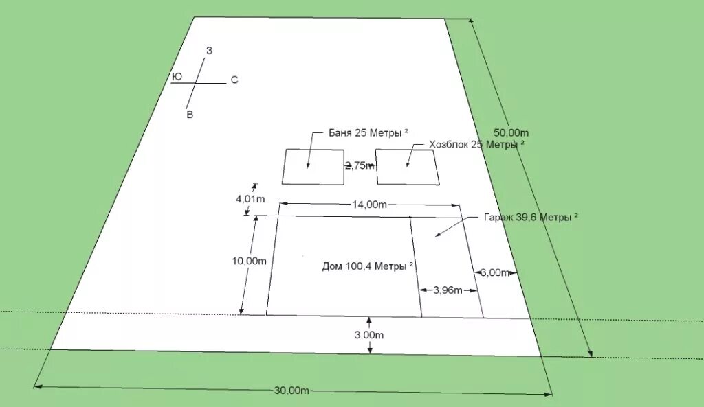
План расположения строений