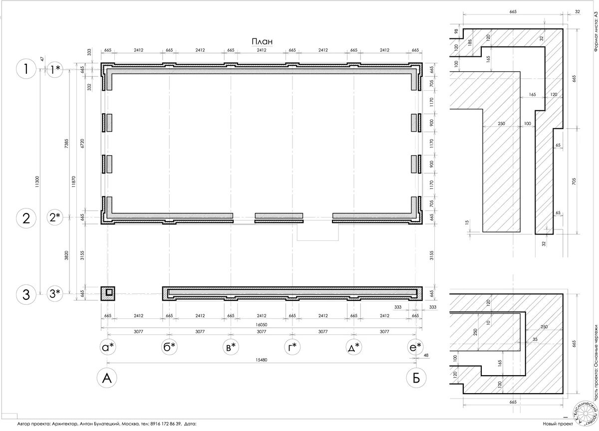
План проекта кирпичного