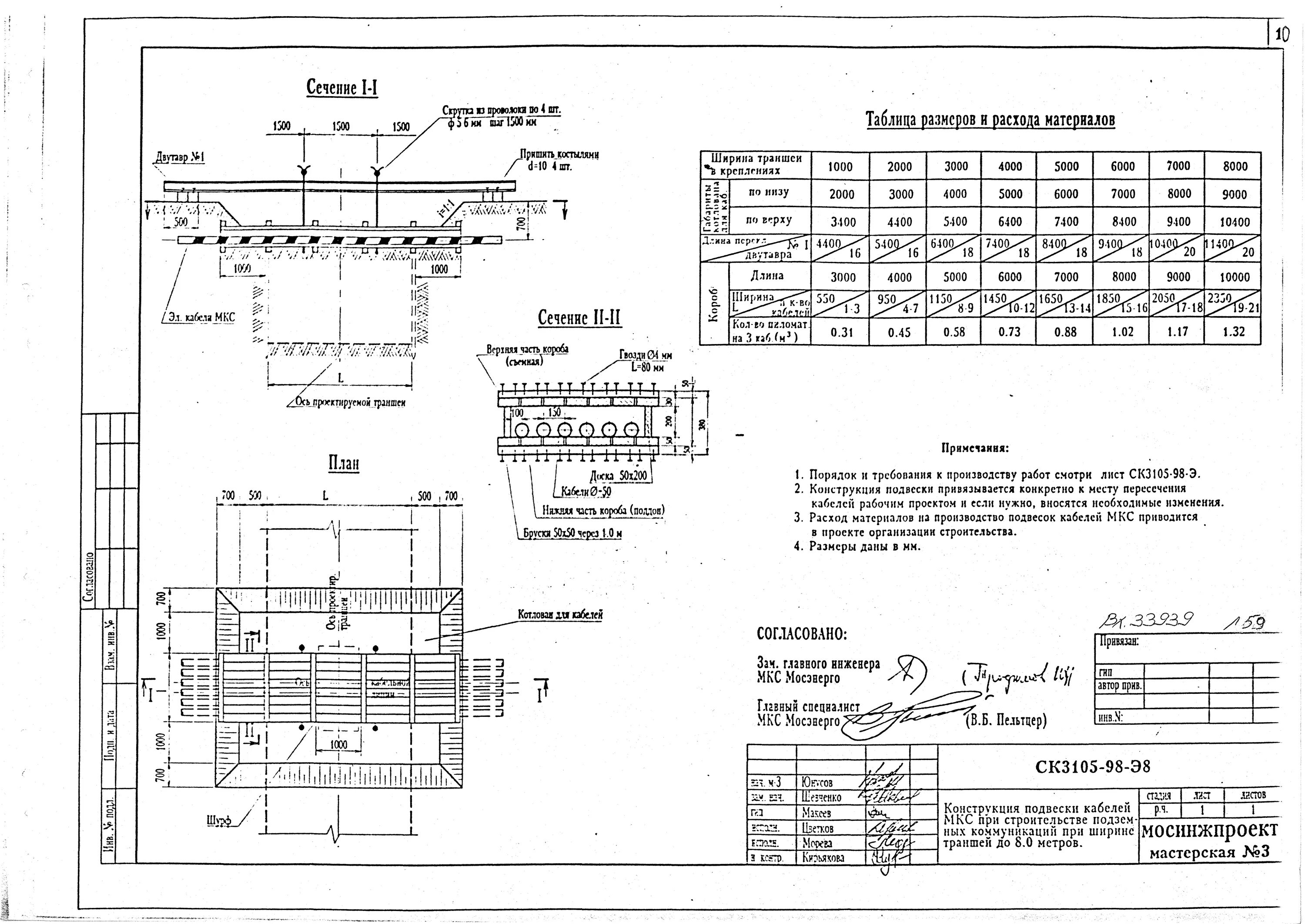
Пересечение кабелей в земле