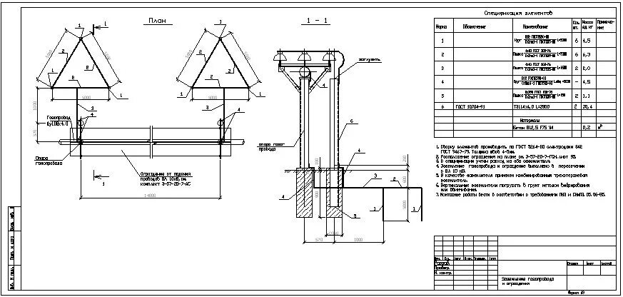
Пересечение газопроводом вл