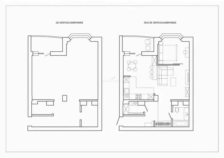
Перепланировки изменение площади