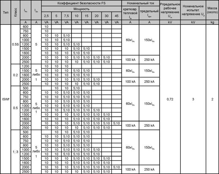
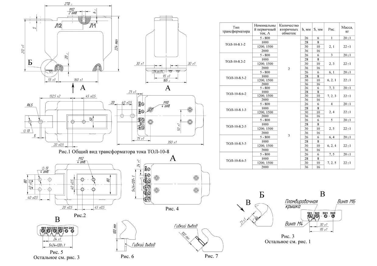
Параметры трансформаторов тока