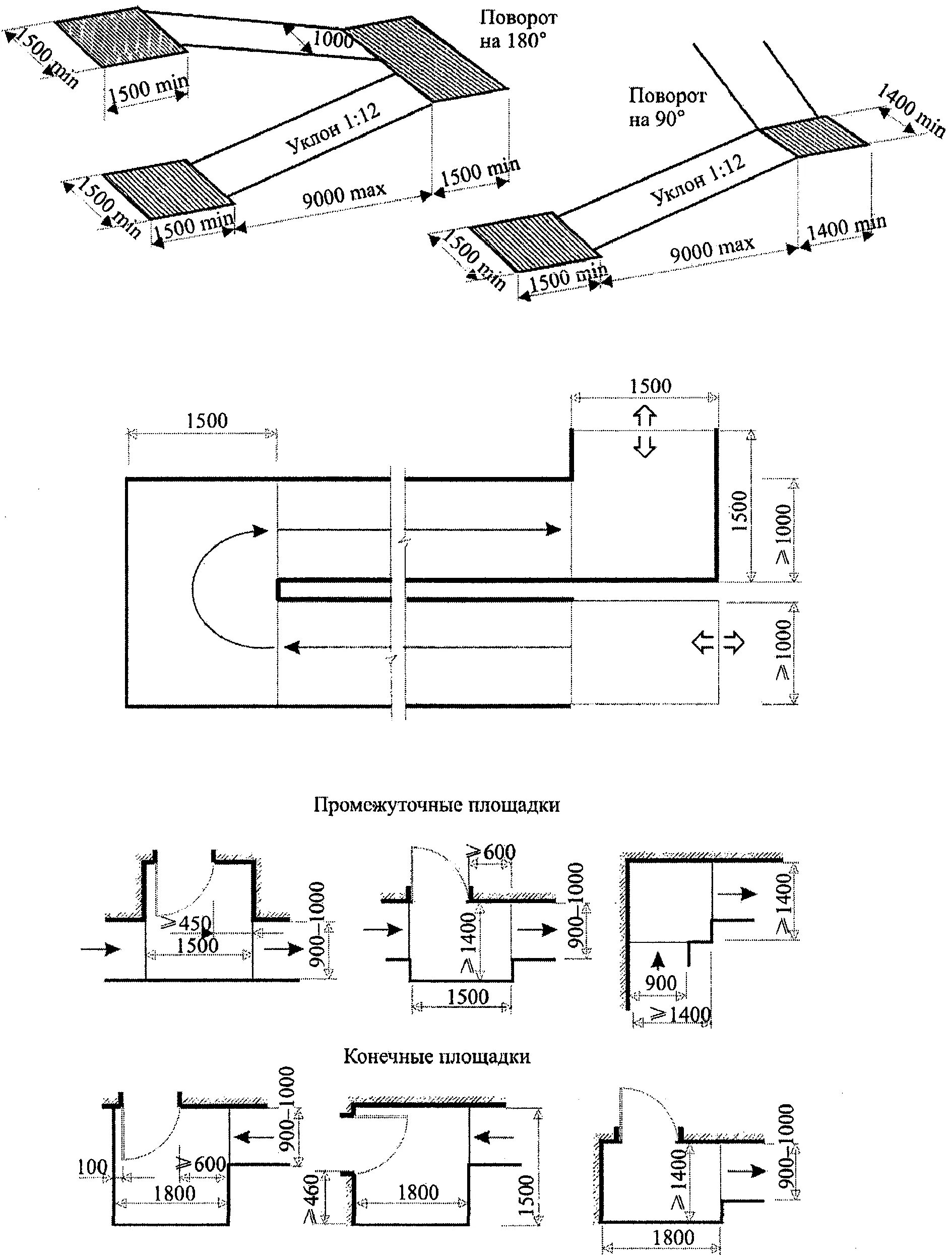
Пандус для инвалидов нормы