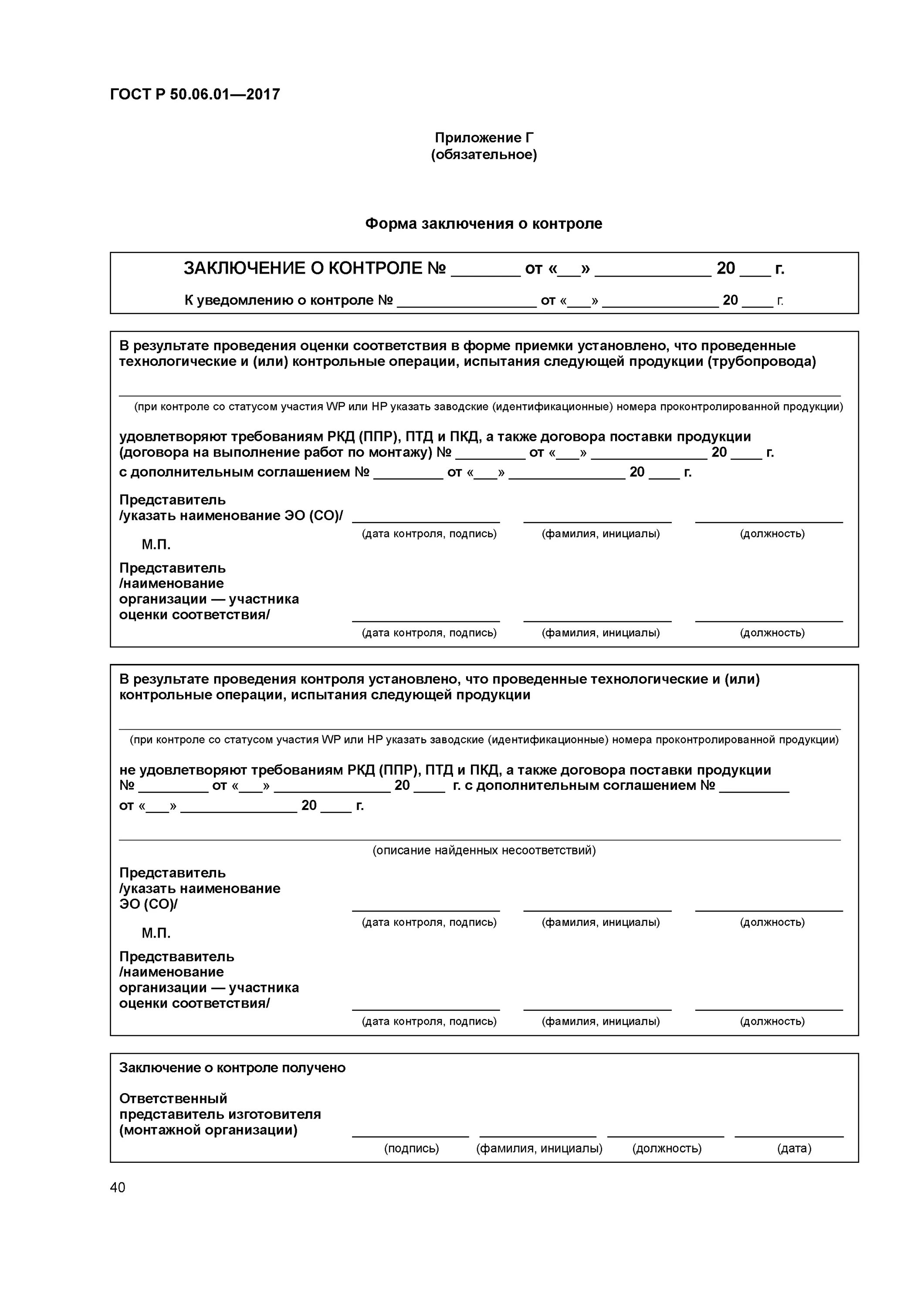
Оценка соответствия в форме приемки