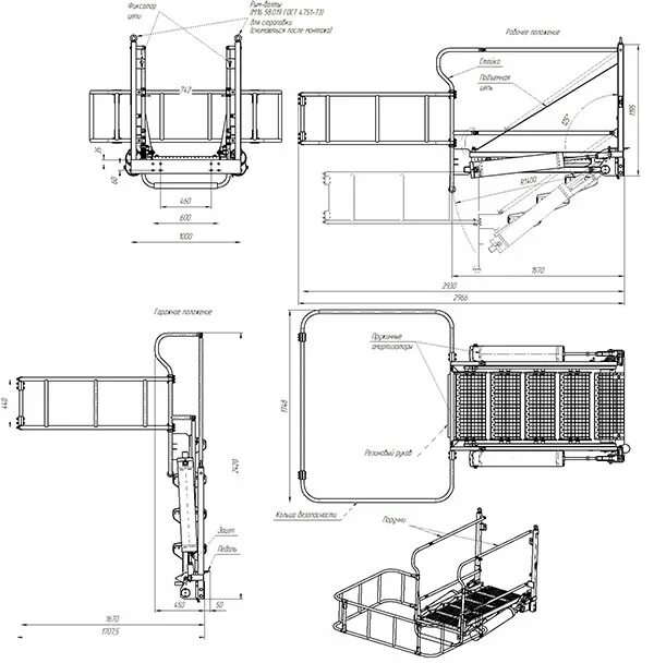
Открытую откидную площадку необходимо