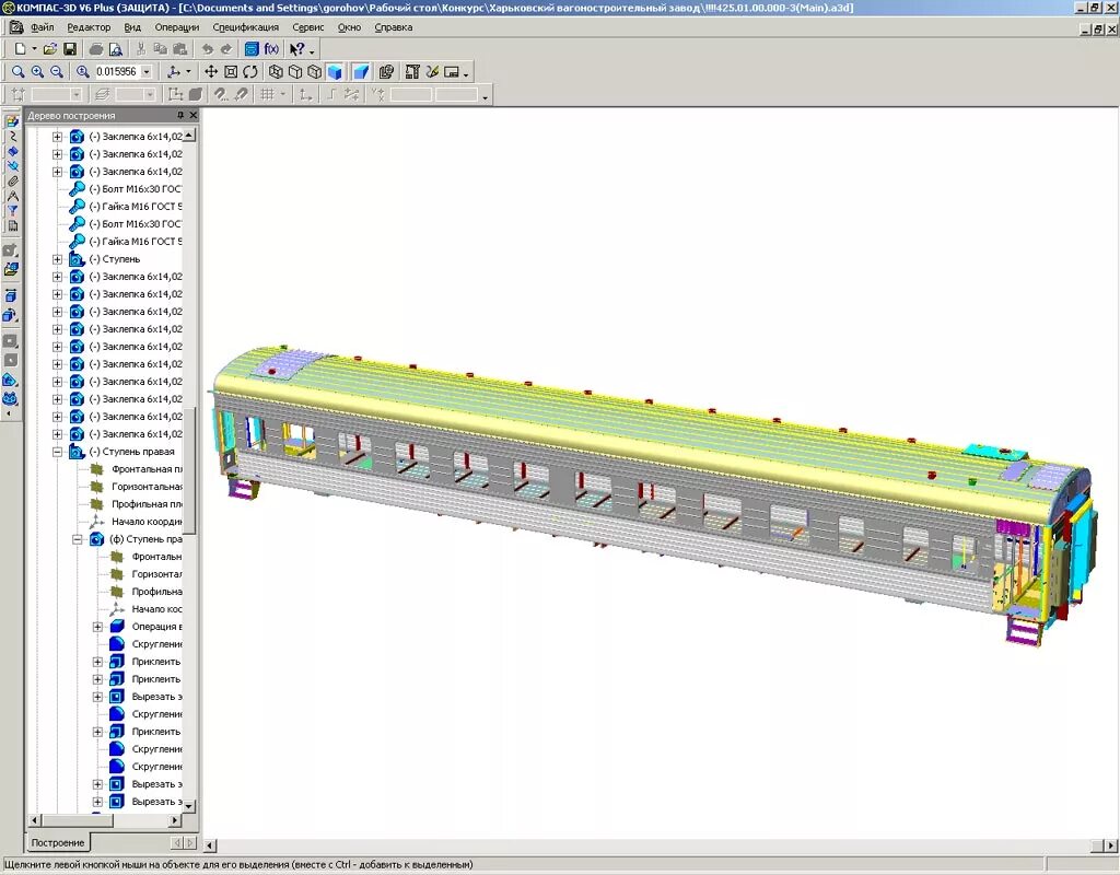
Основные системы пассажирского вагона