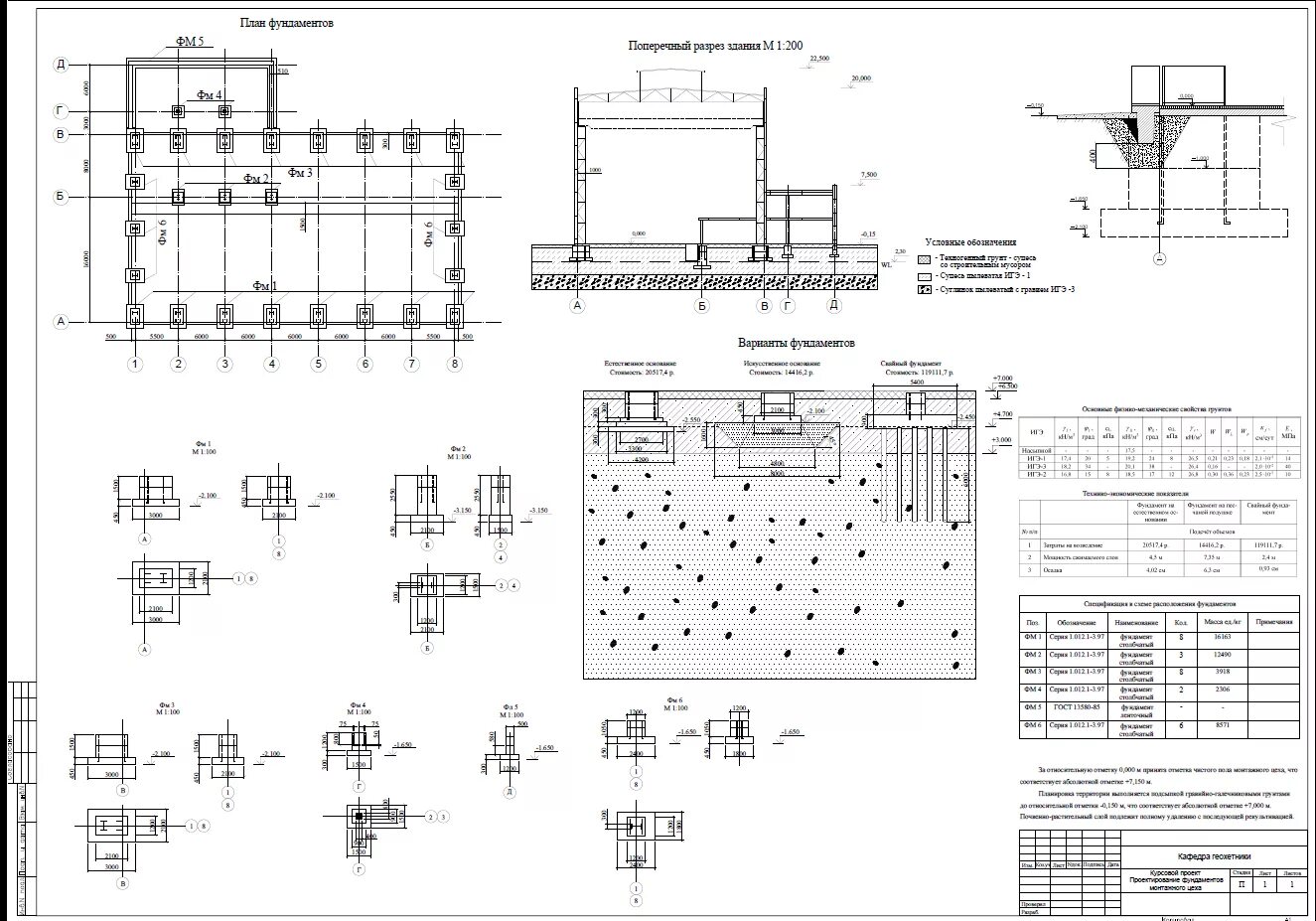
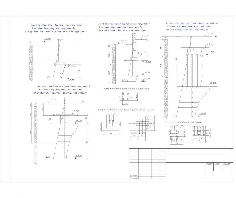
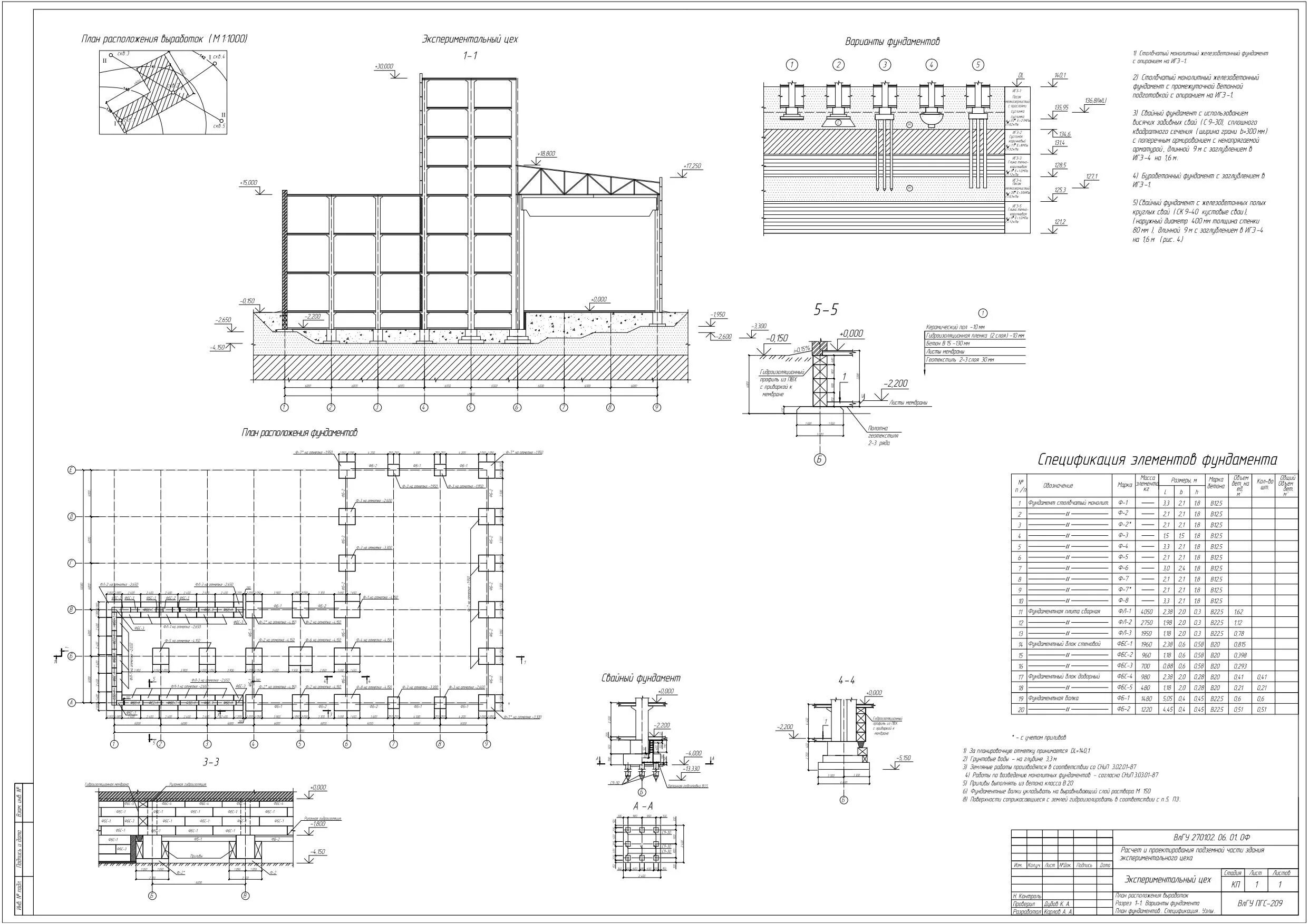
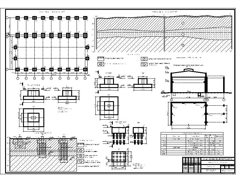
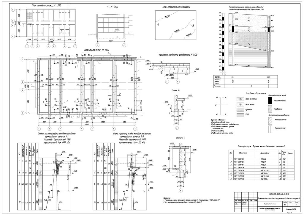
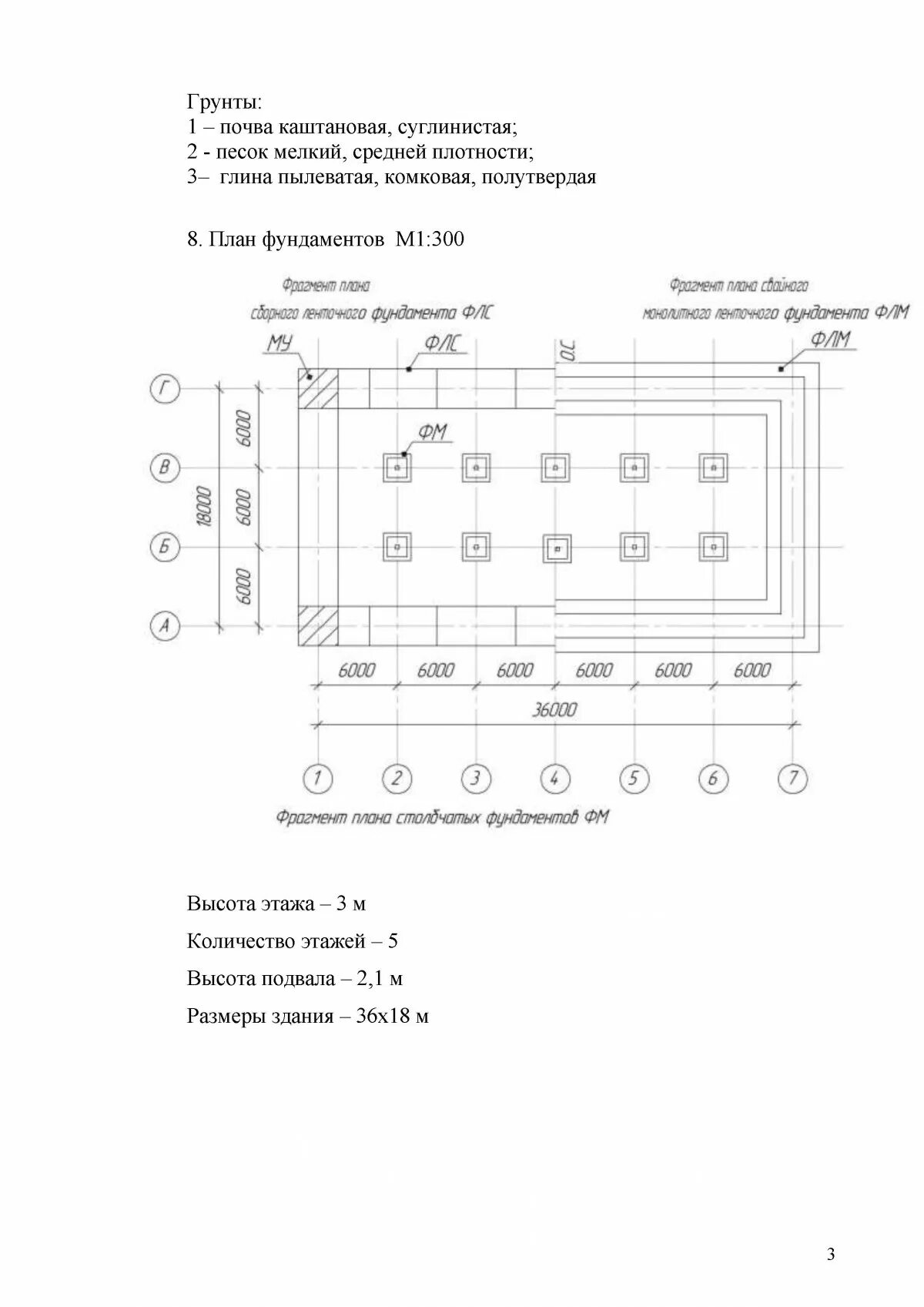
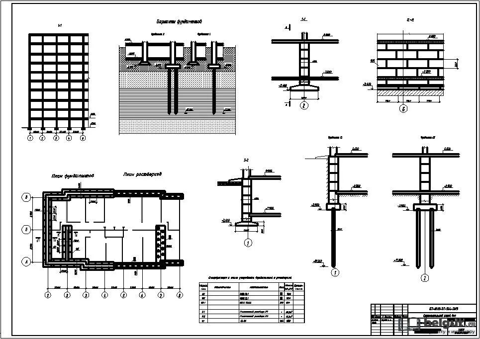
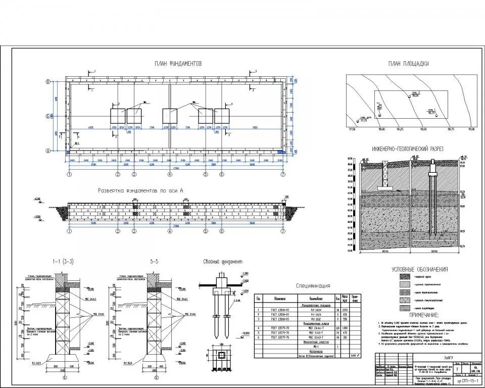
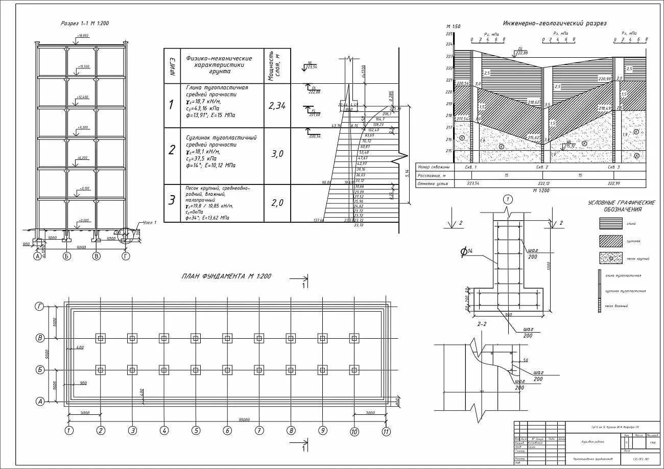
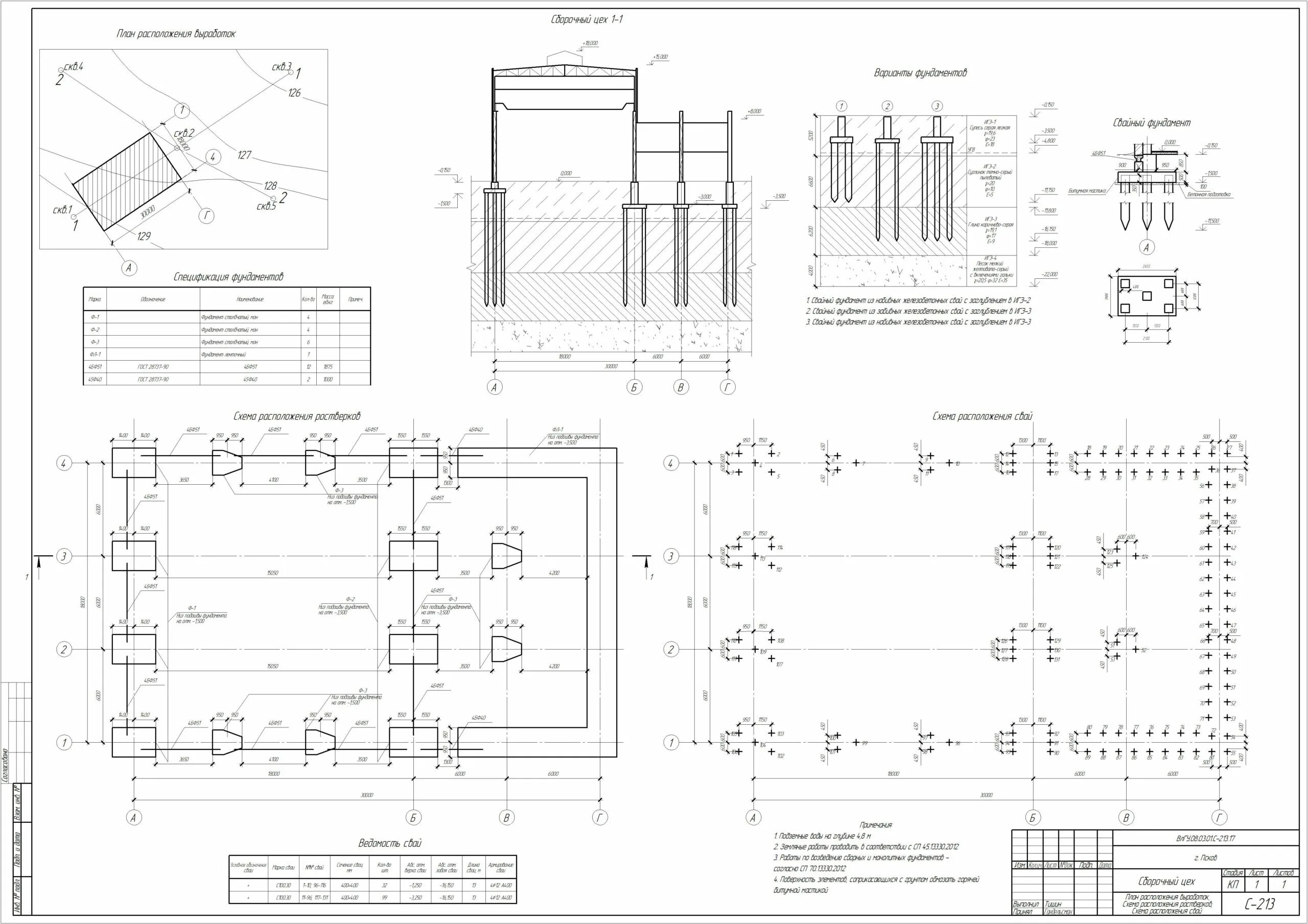
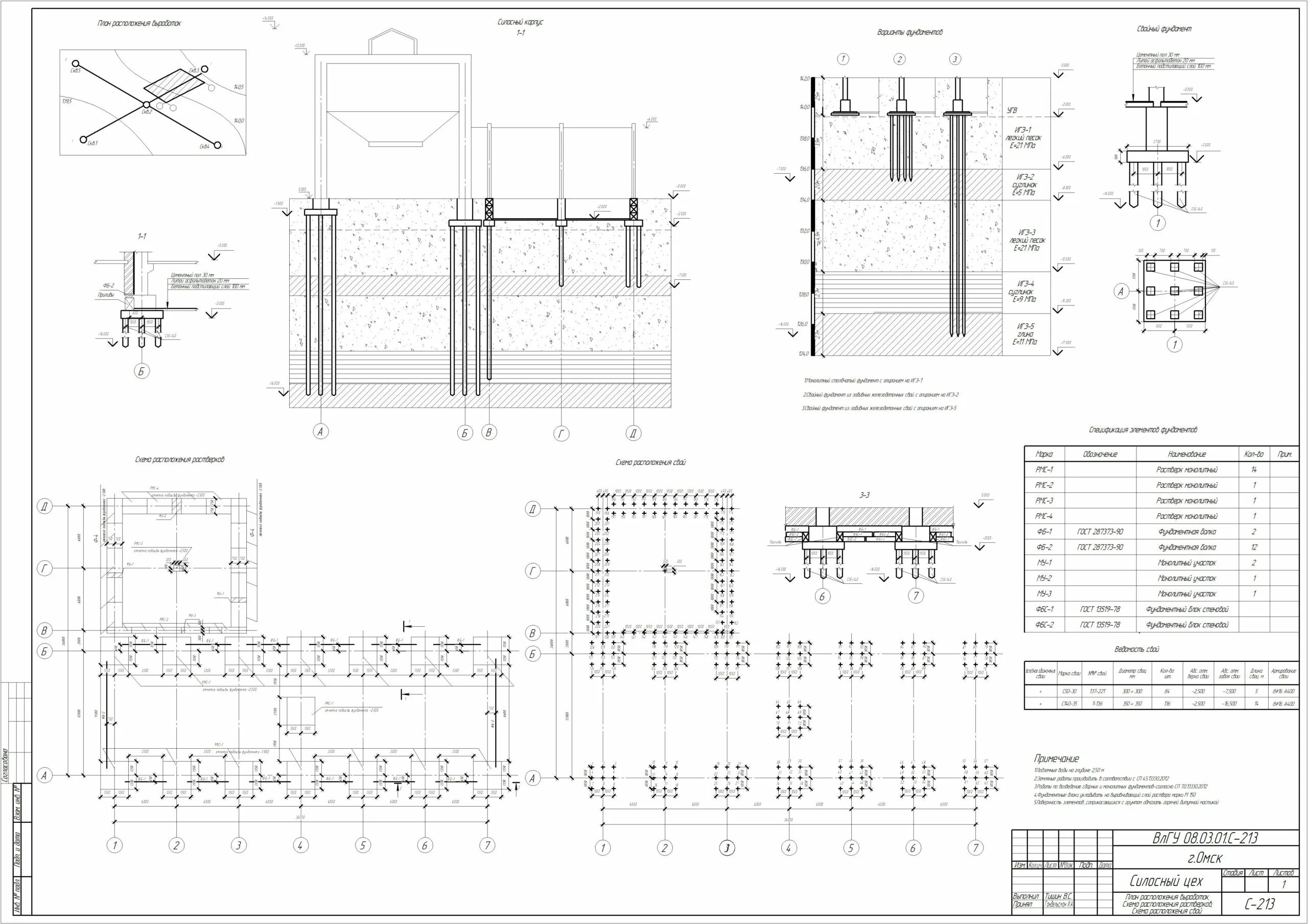
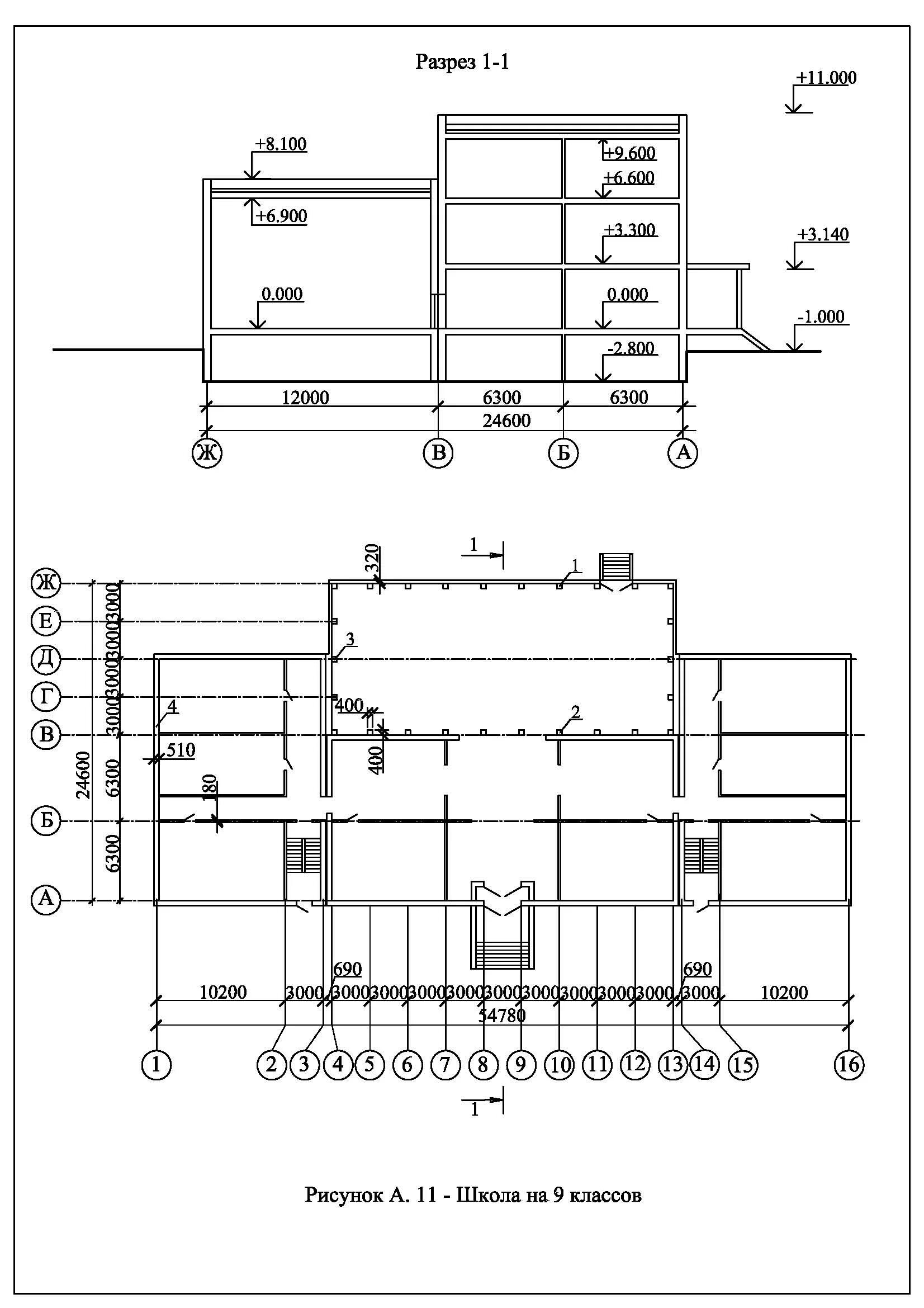
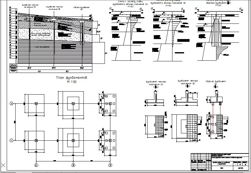
Основания и фундаменты курсовая работа