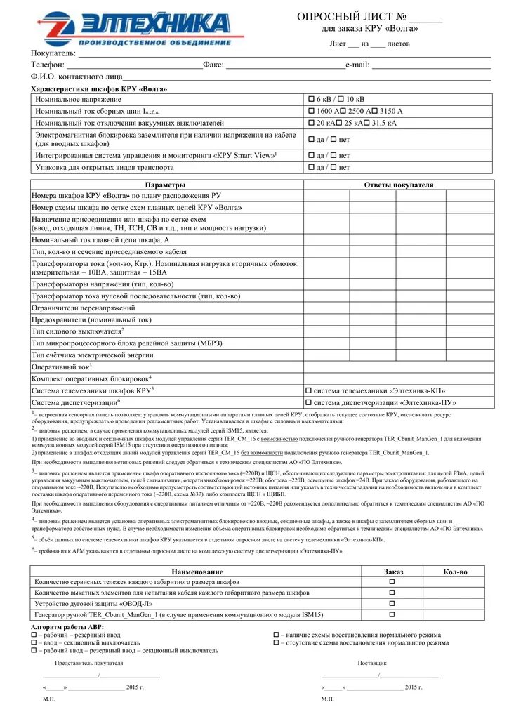
Опросный лист 2