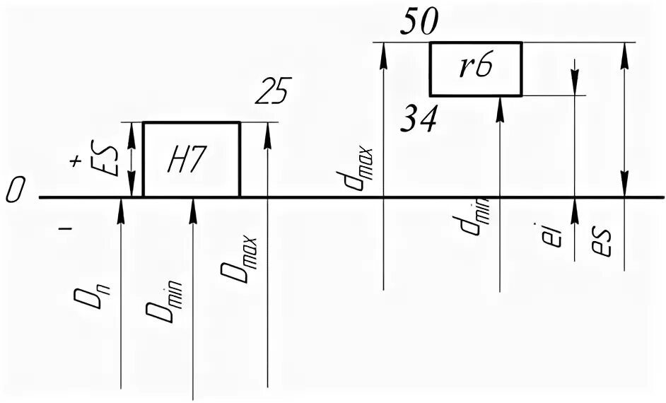
Определить предельные размеры и допуски деталей