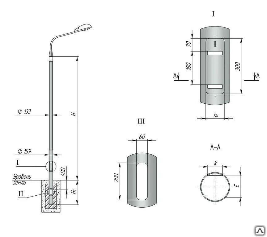
Опоры освещения работа