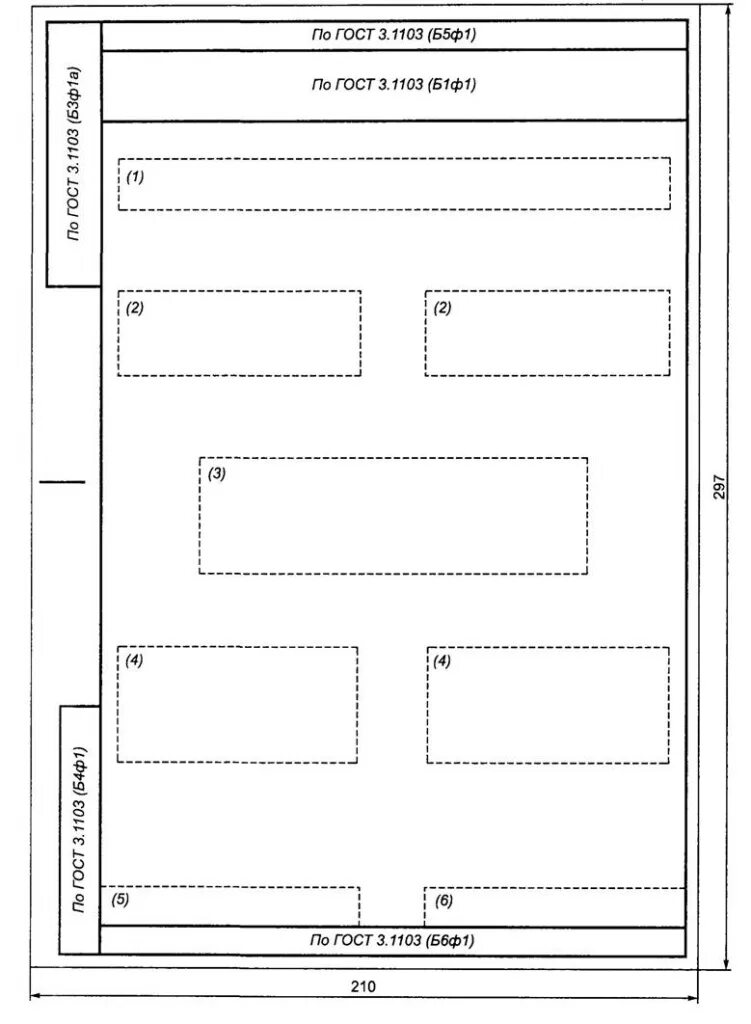
Оформление документов общего назначения