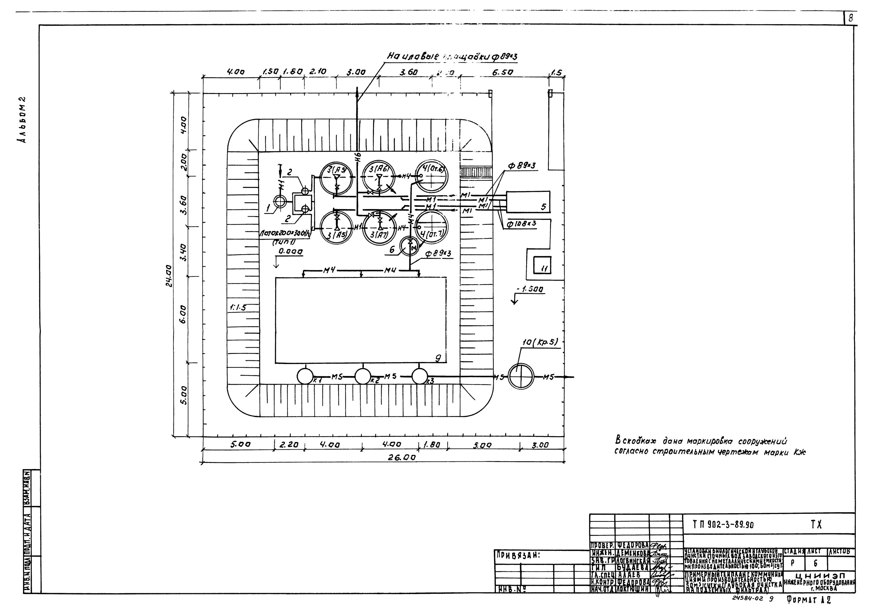
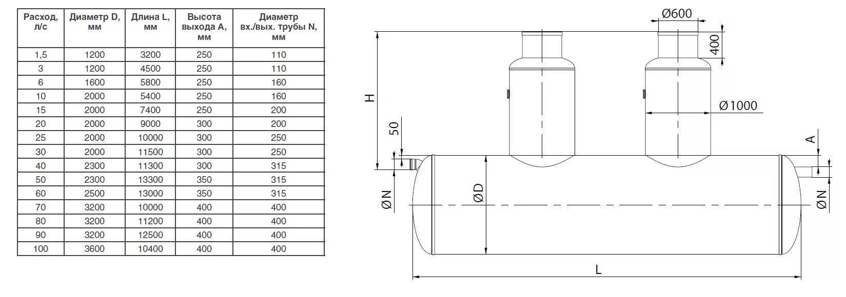
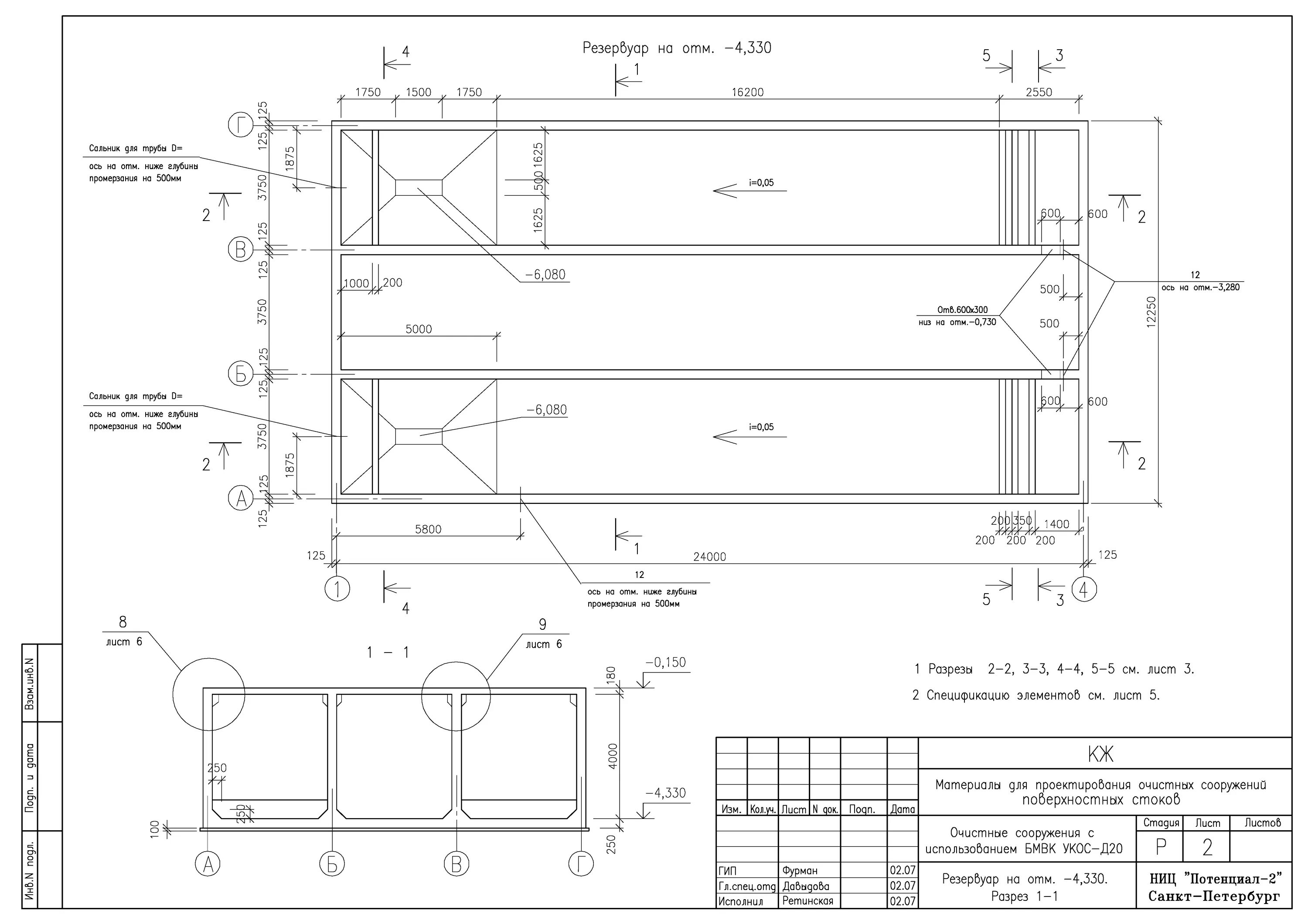
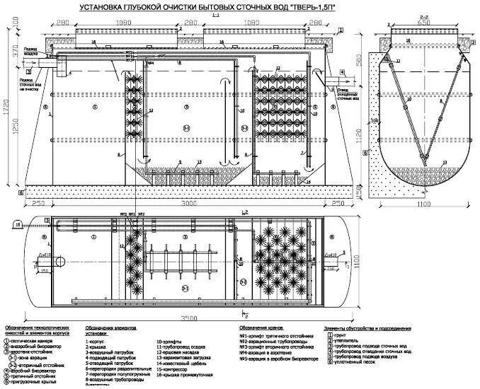
Очистные сооружения размеры