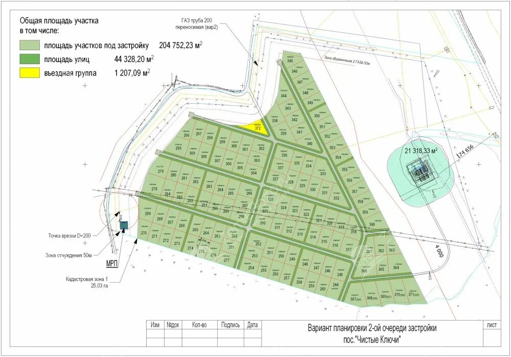
Общая площадь садовых