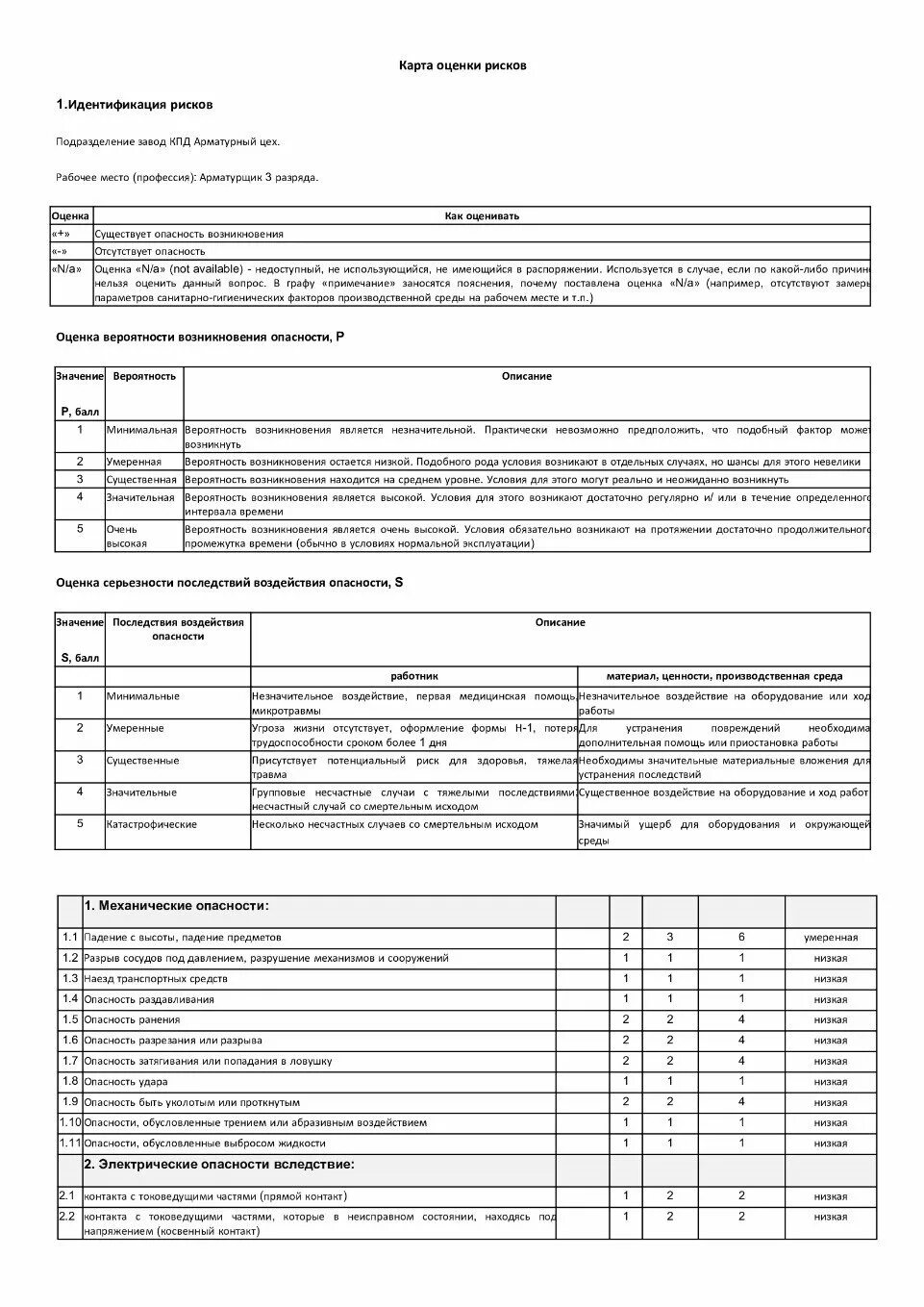
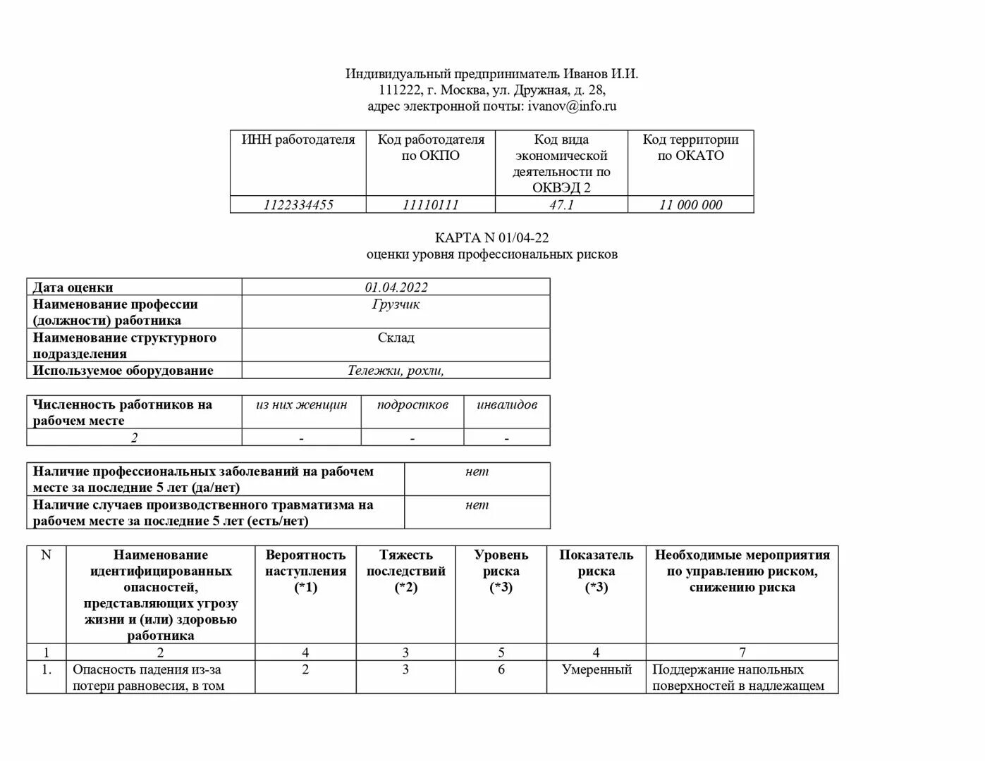
Образцы карты идентификации опасностей