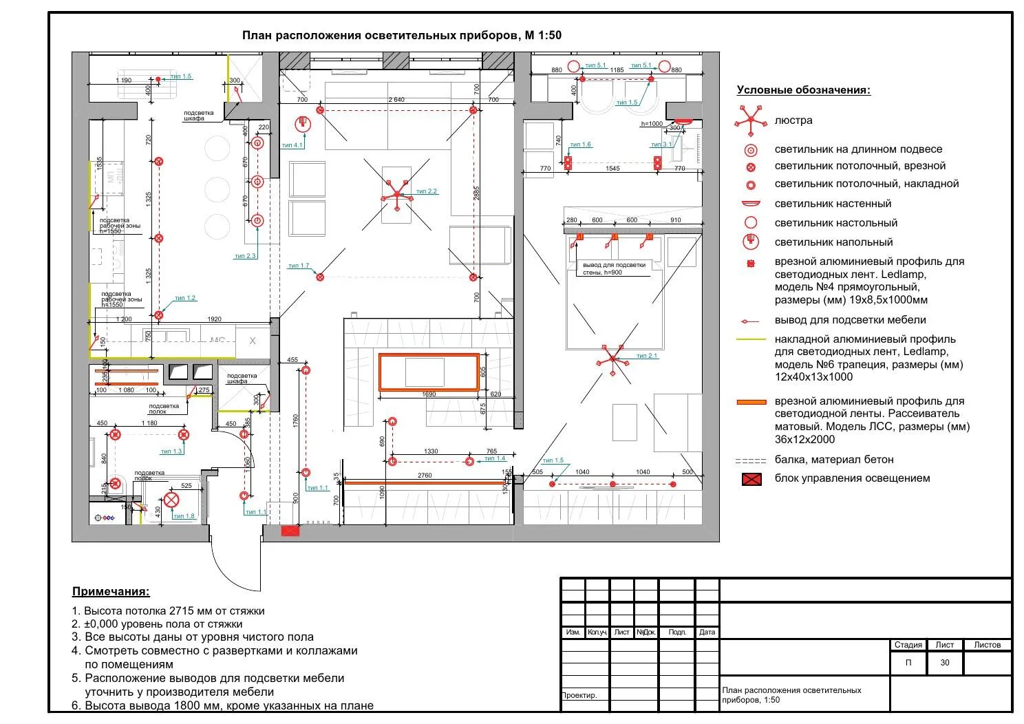
Обозначение размещения