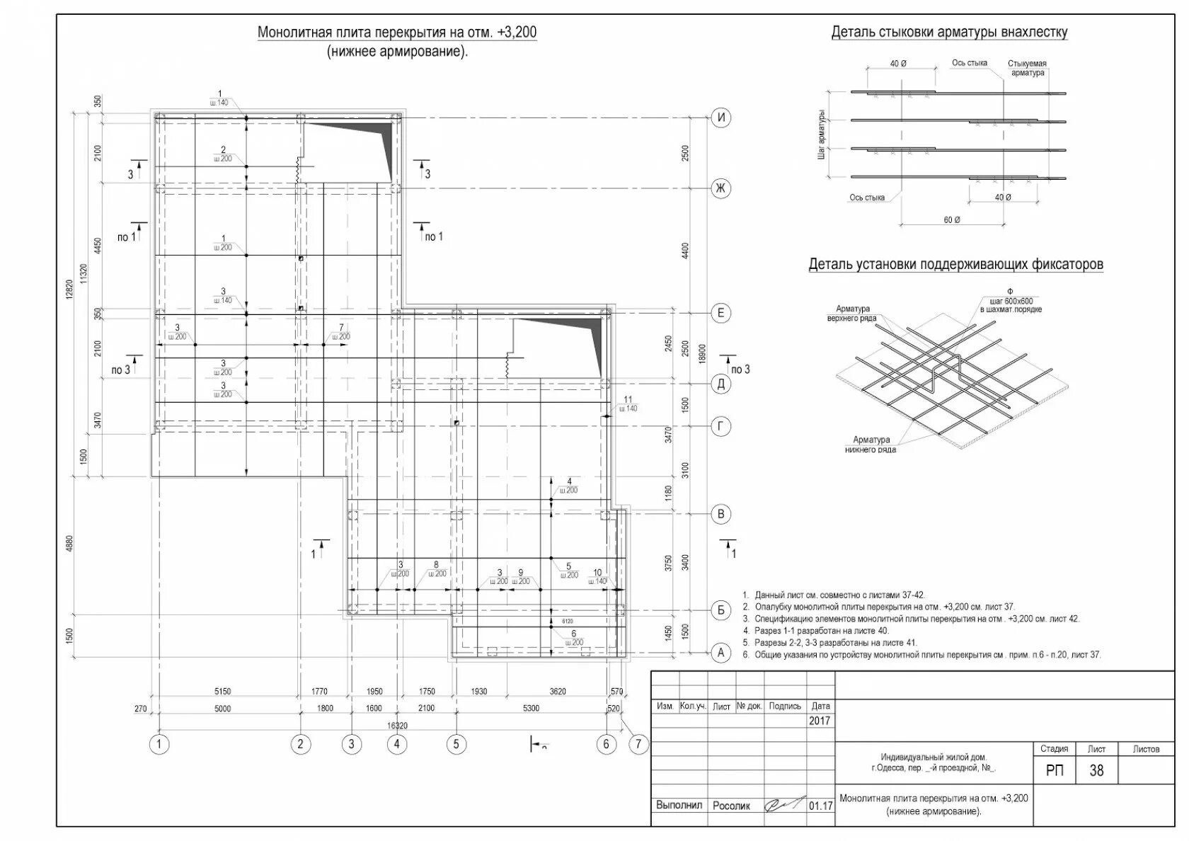
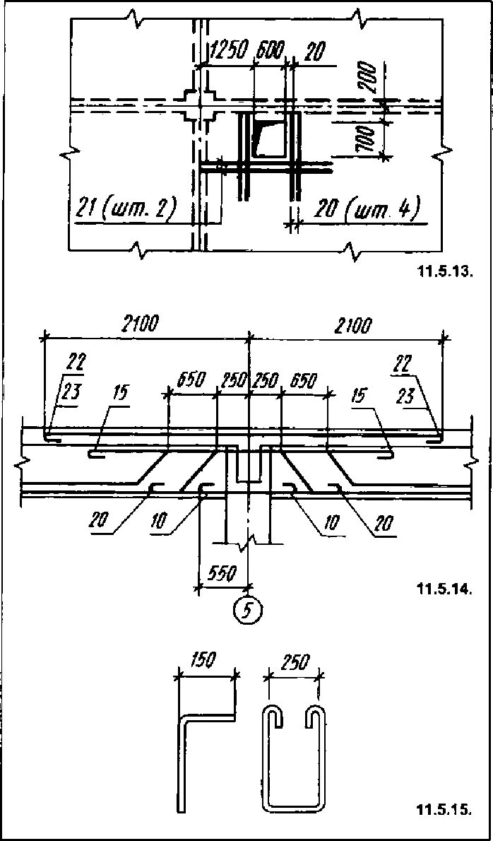
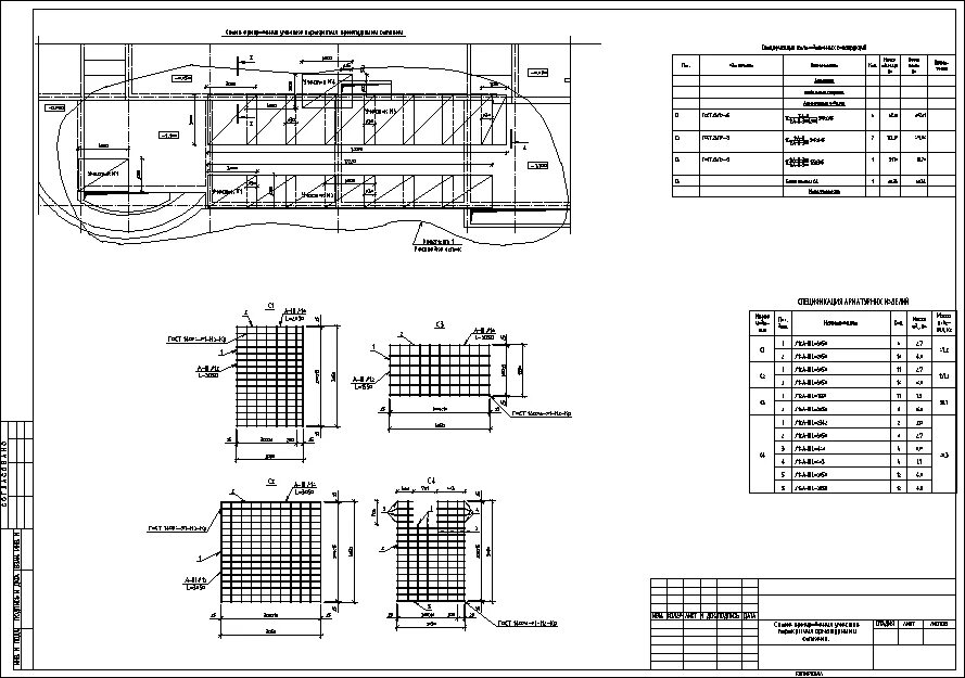
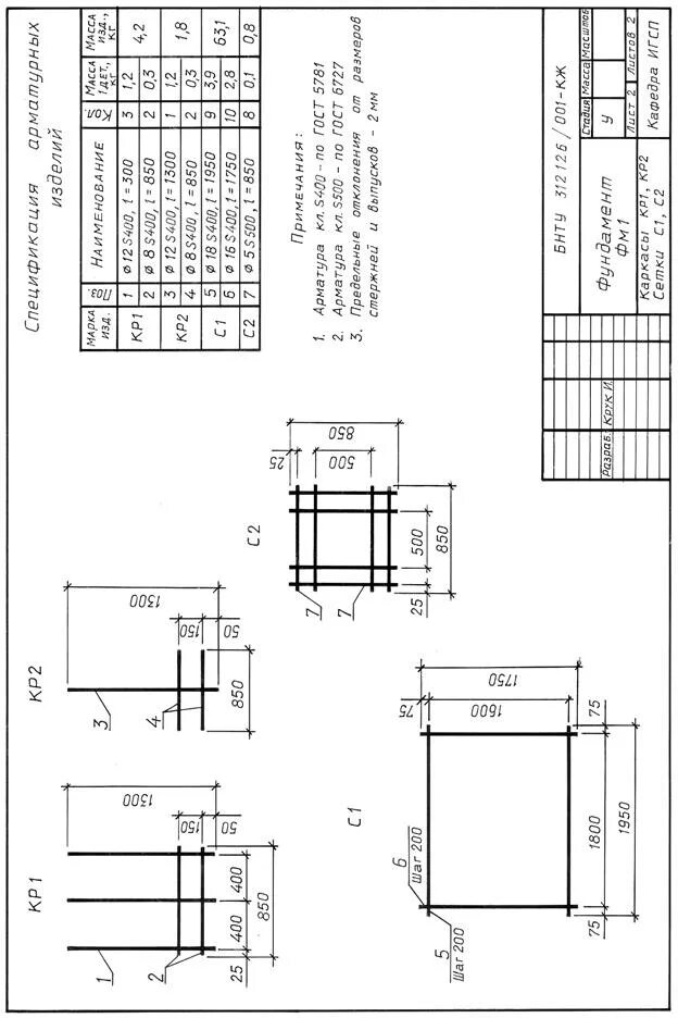
Обозначение армирования