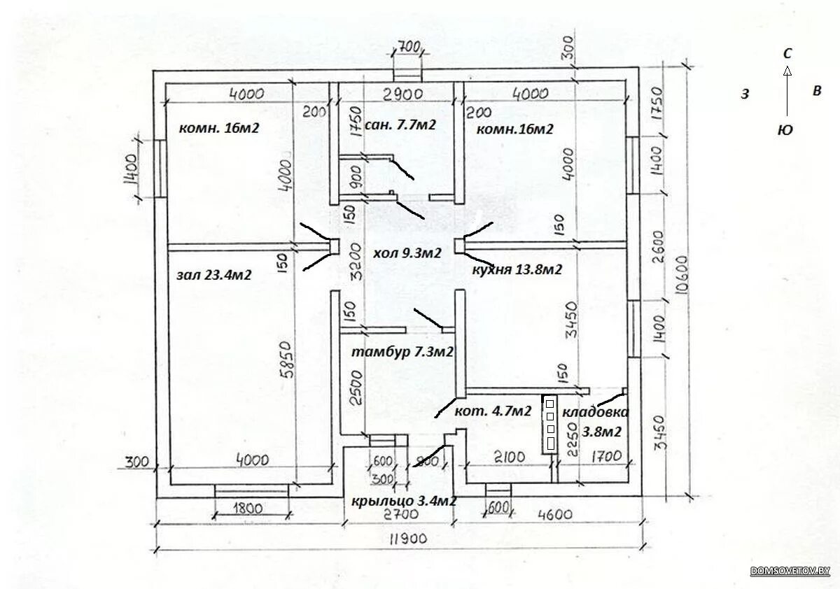
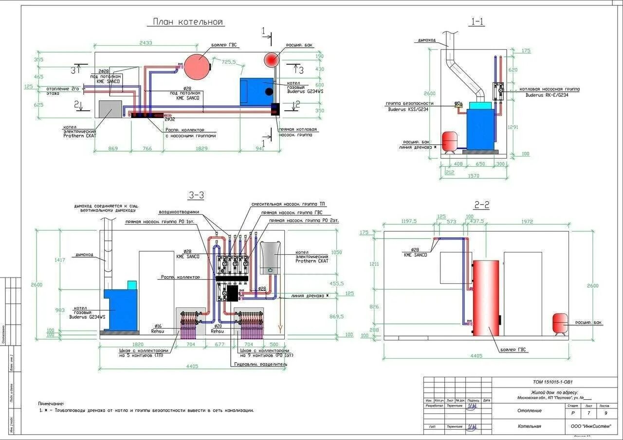
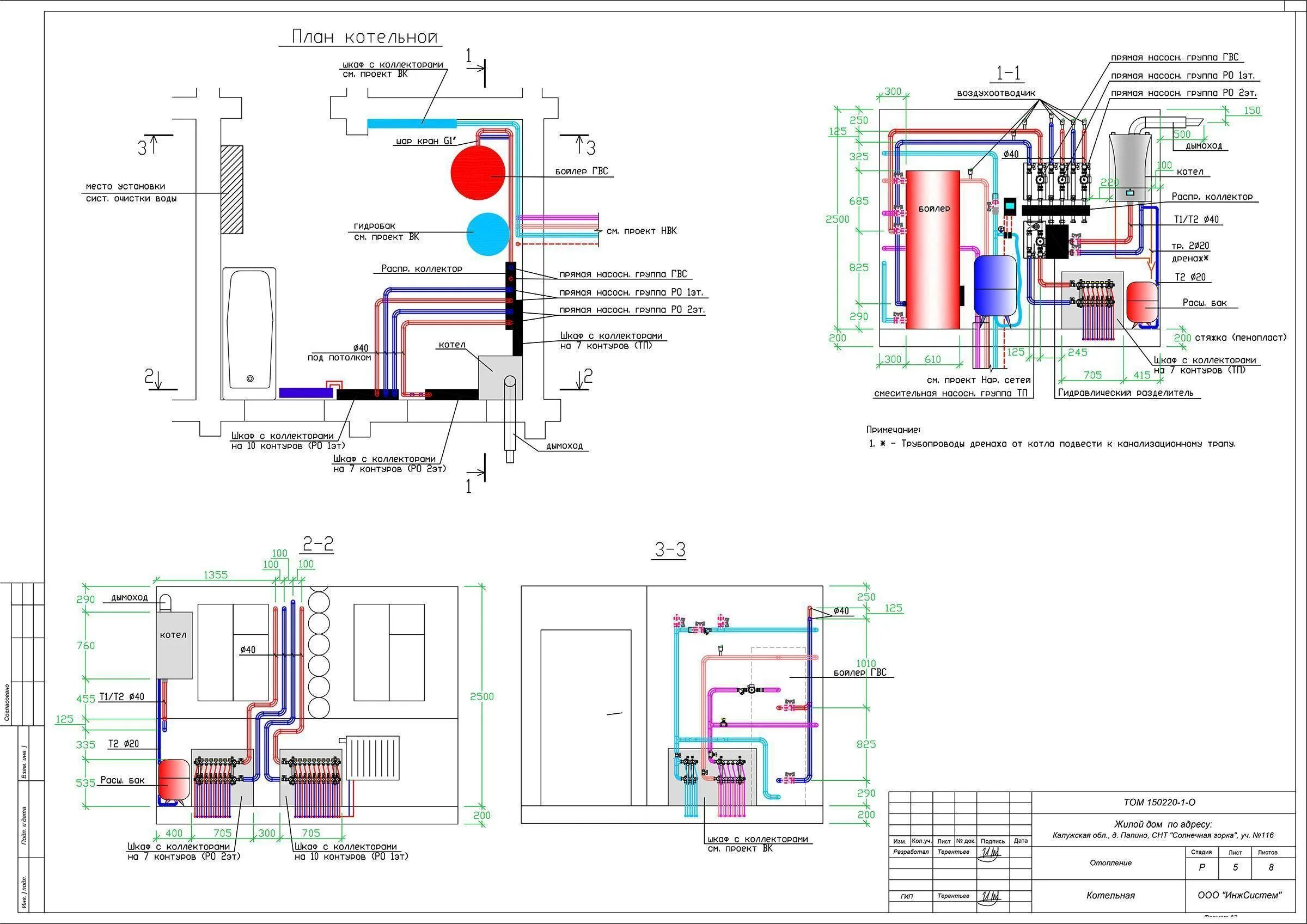
Объем помещения для установки котла