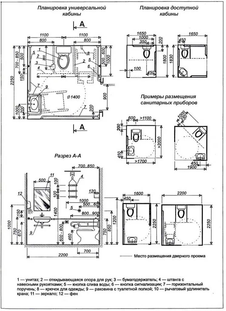
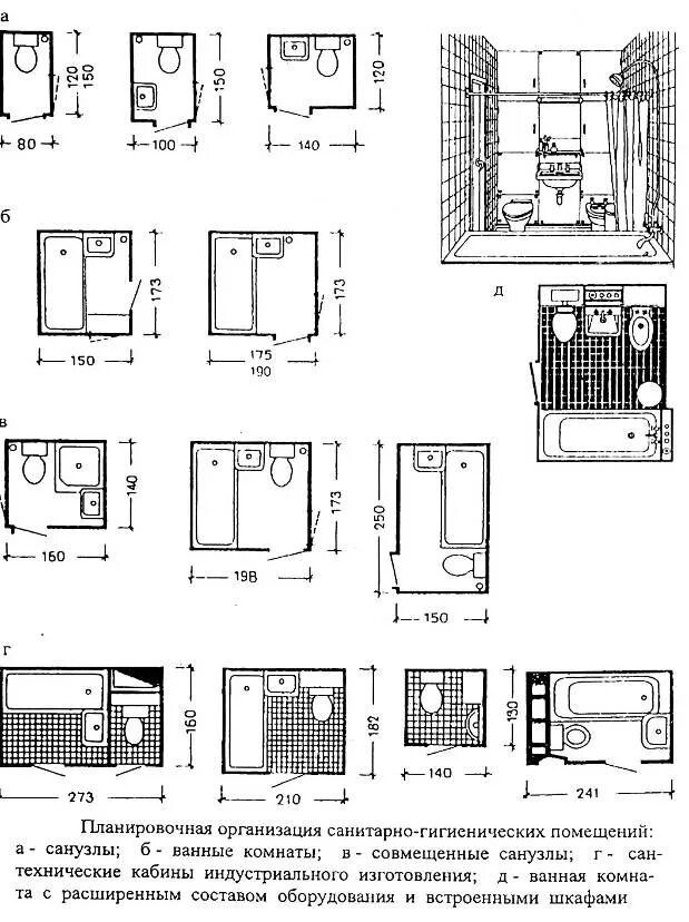
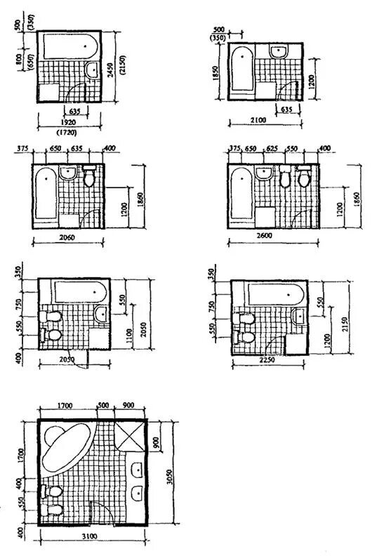
Нормы санузлов в общественных зданиях