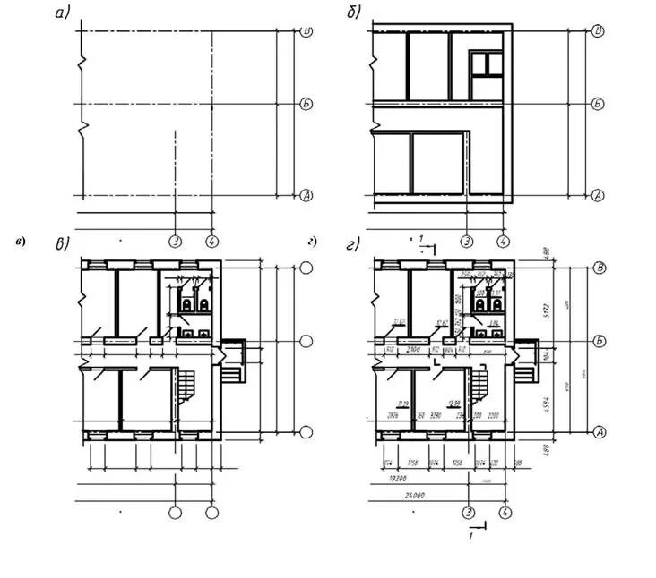
Несущий простенок