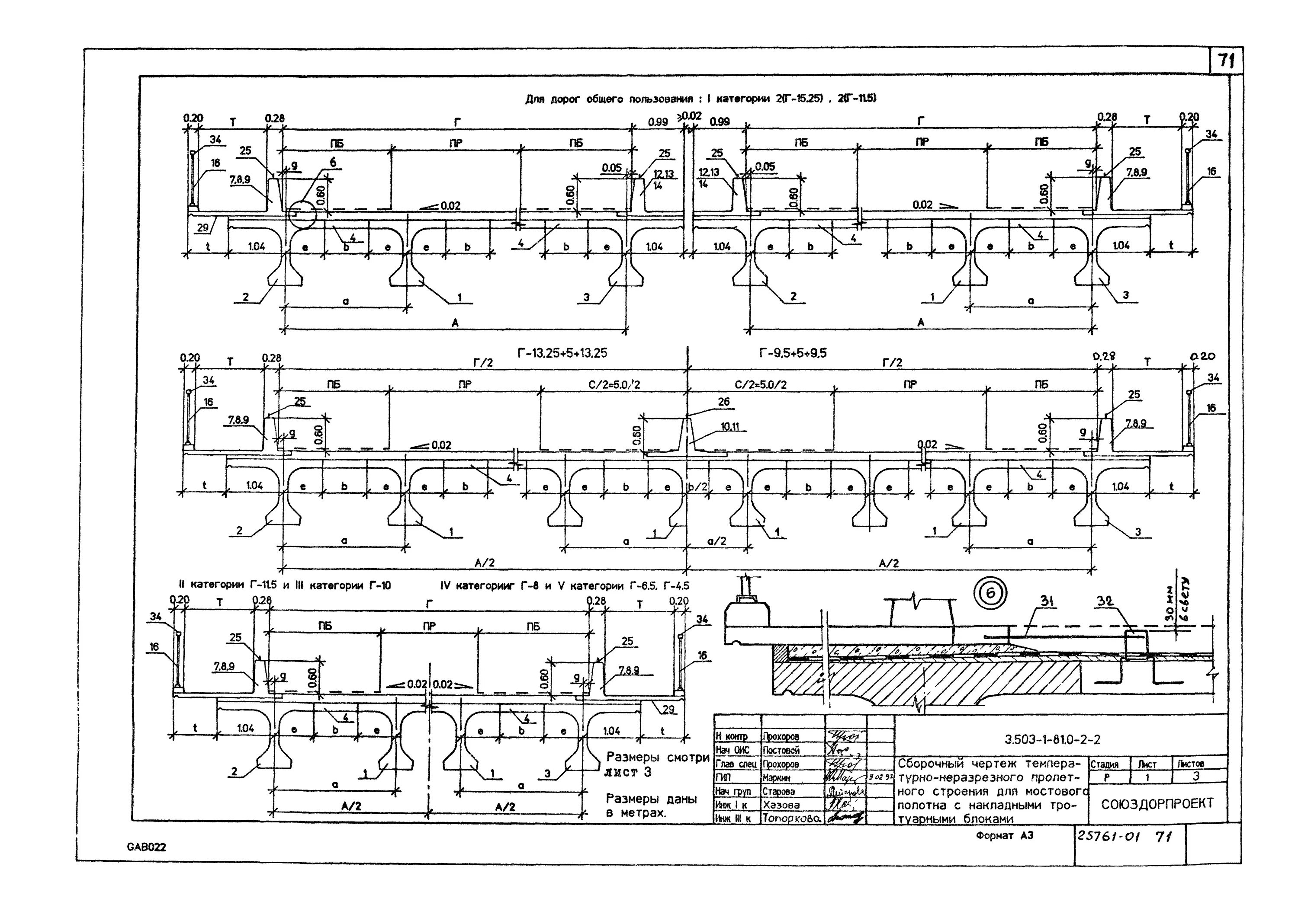
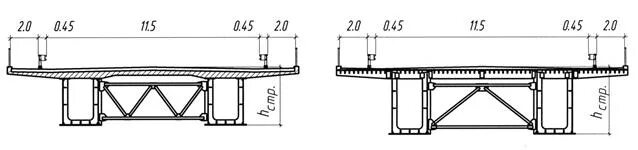
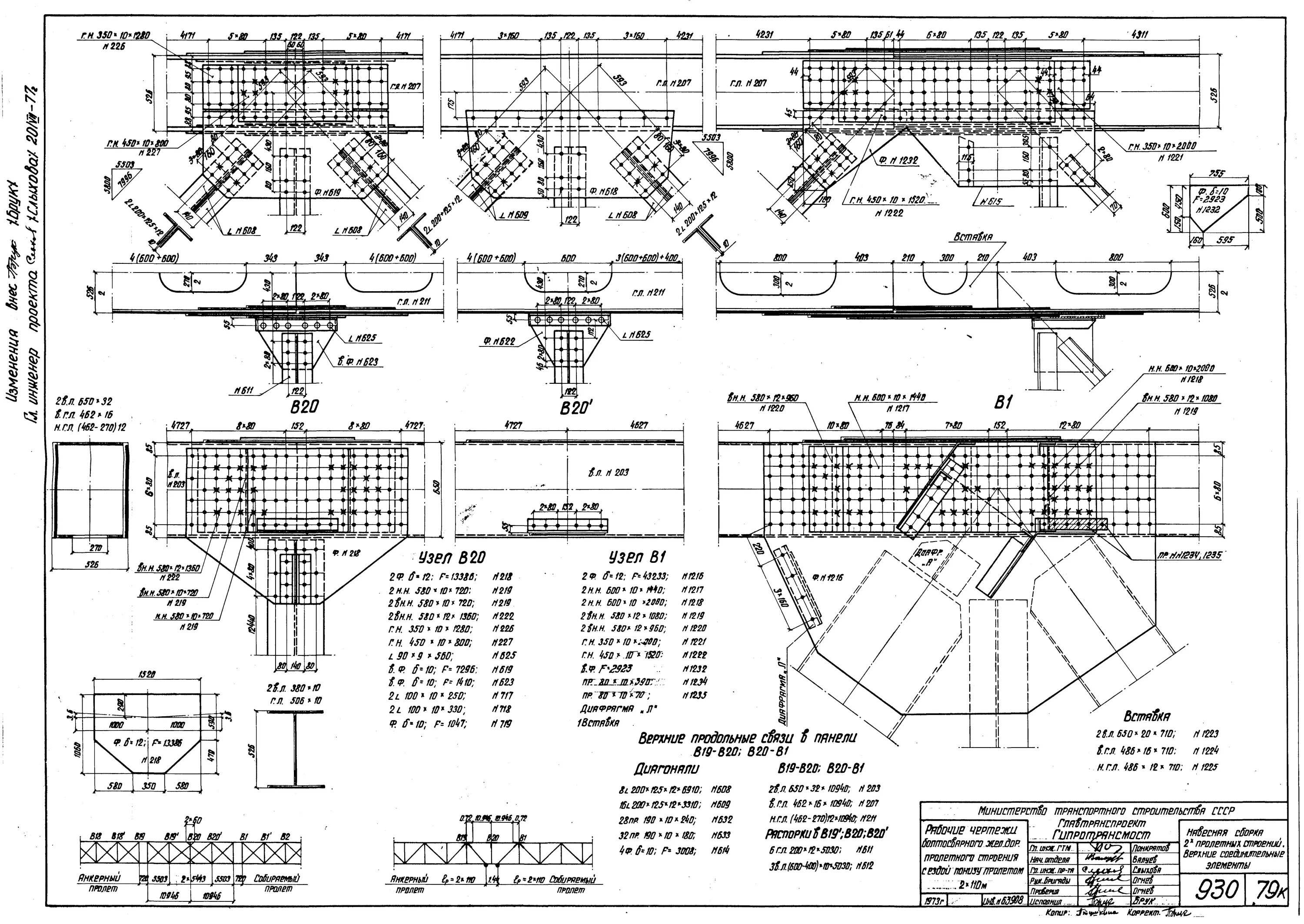
Неразрезное пролетное строение