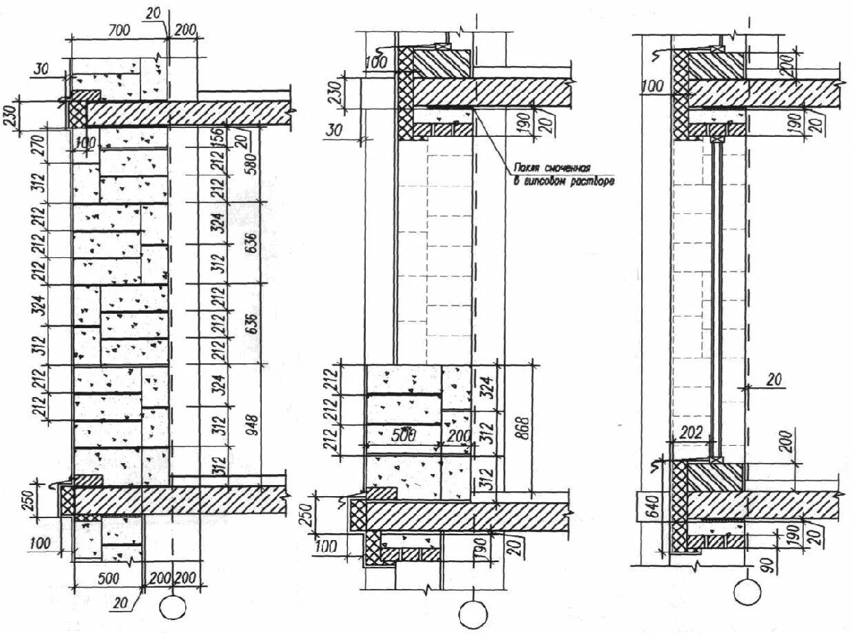
Ненесущие кирпичные стены