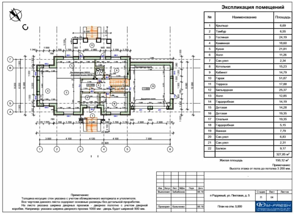
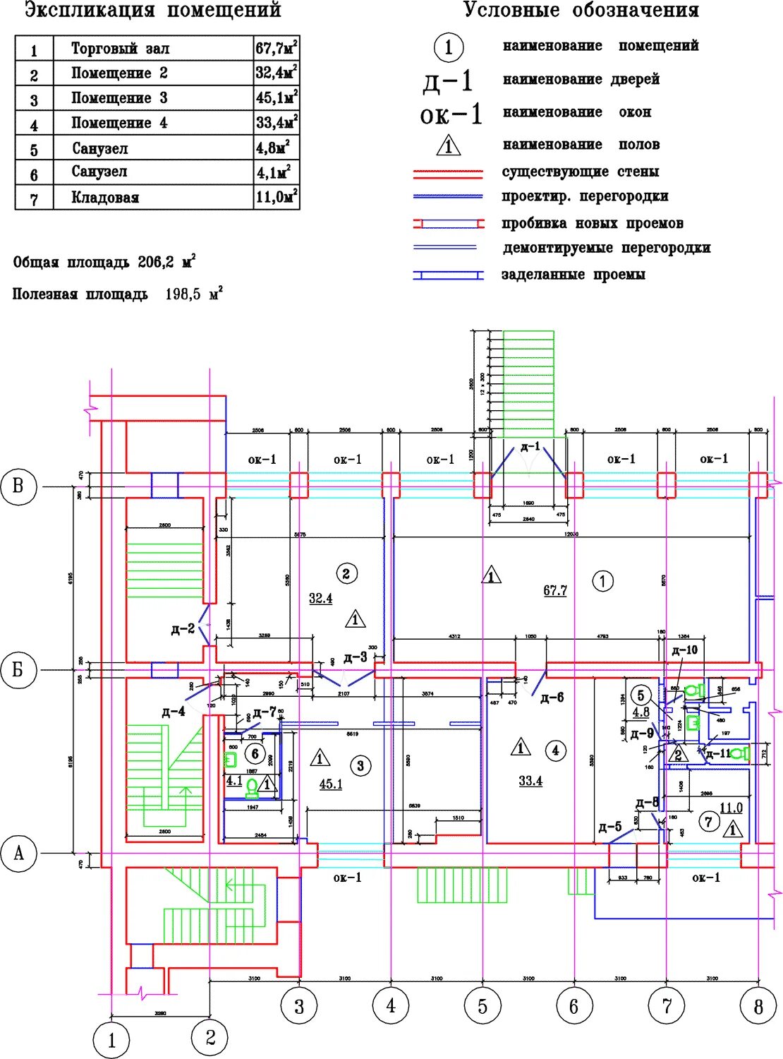
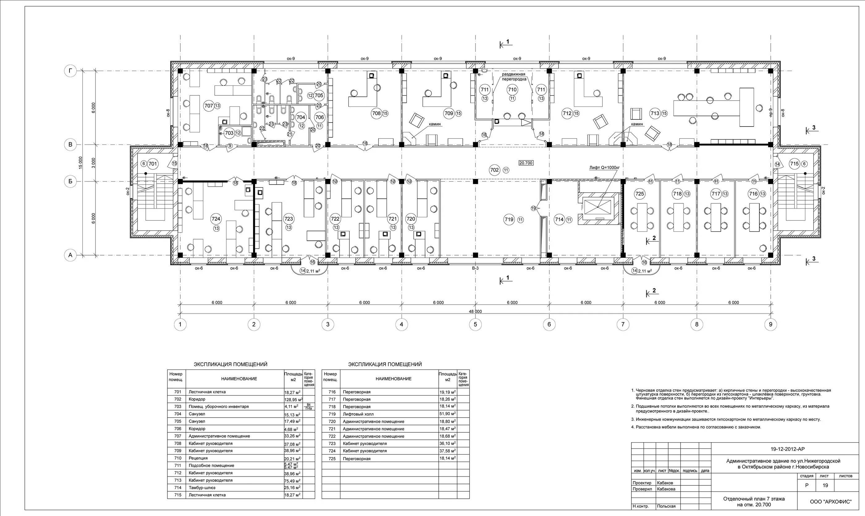
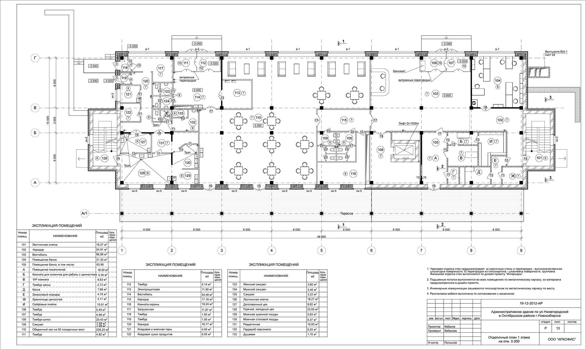
Название помещений в здании