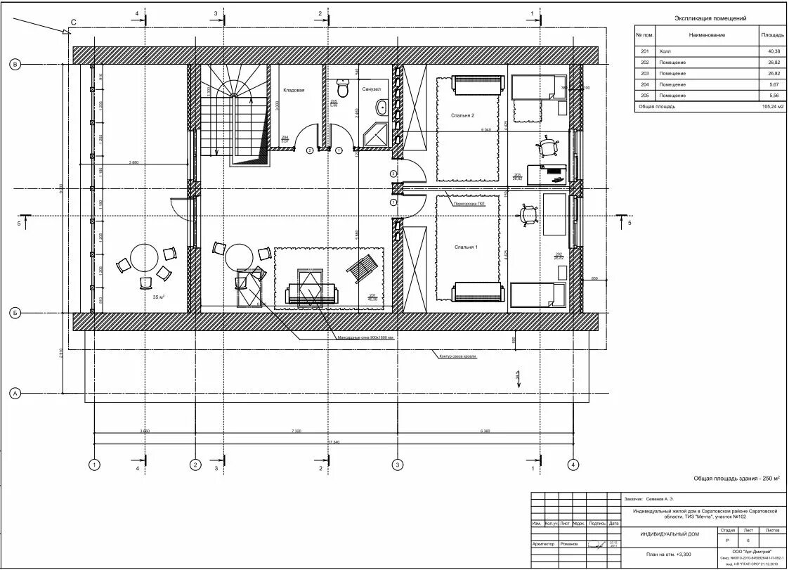
Назначение рабочего проекта