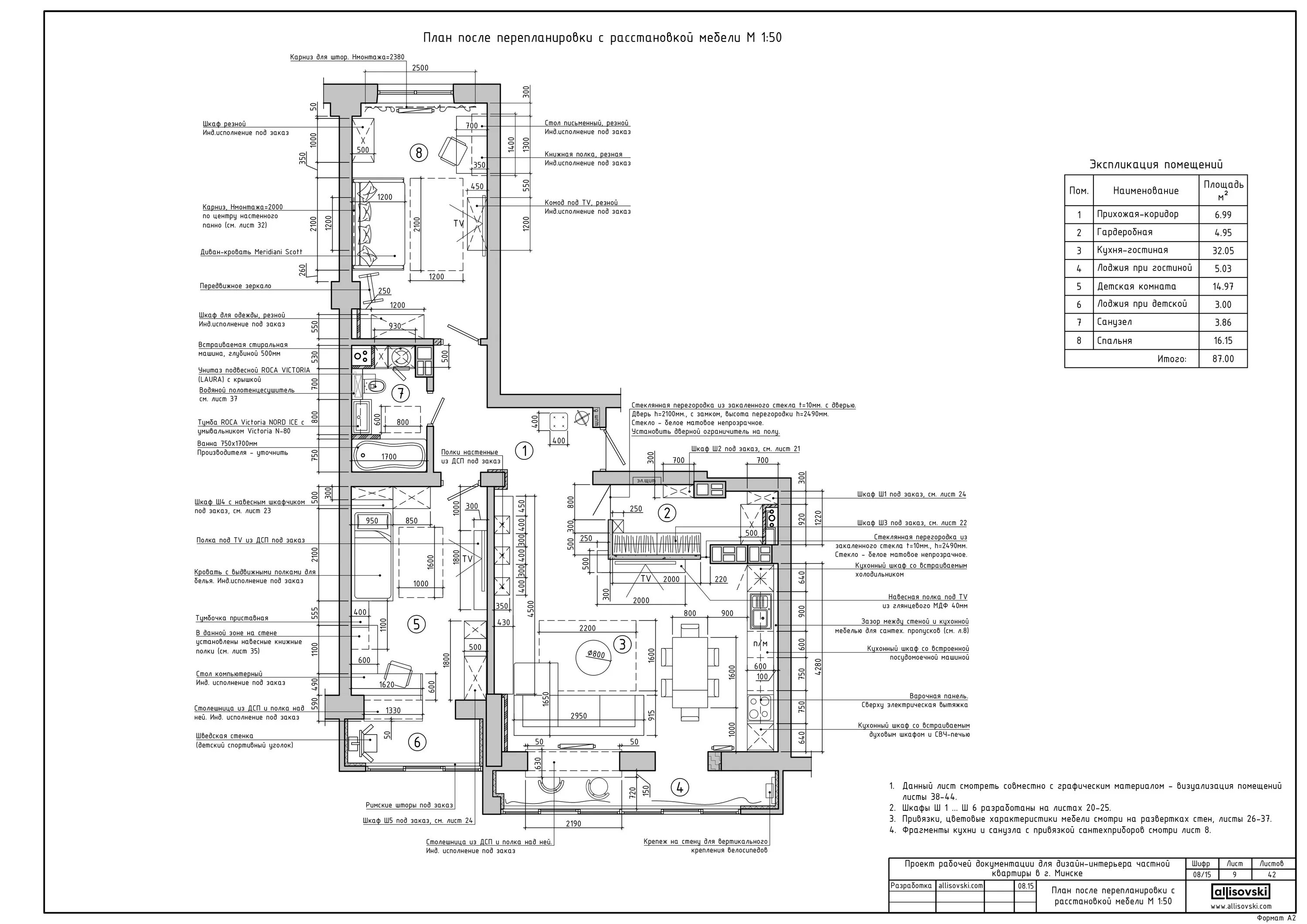
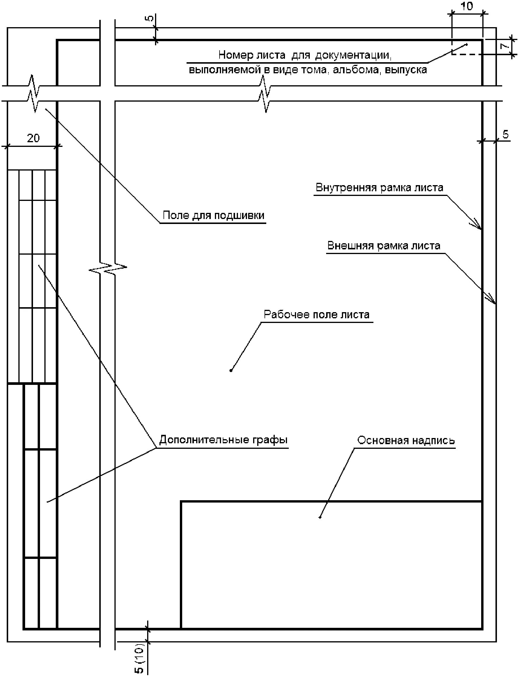
Найти проектную документацию