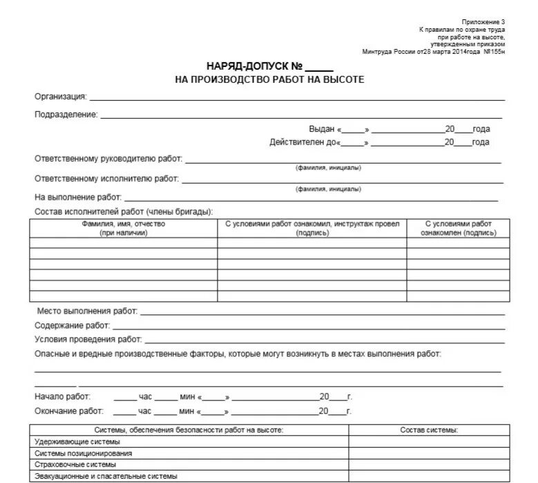
Наряд допуск на проведение работ на высоте