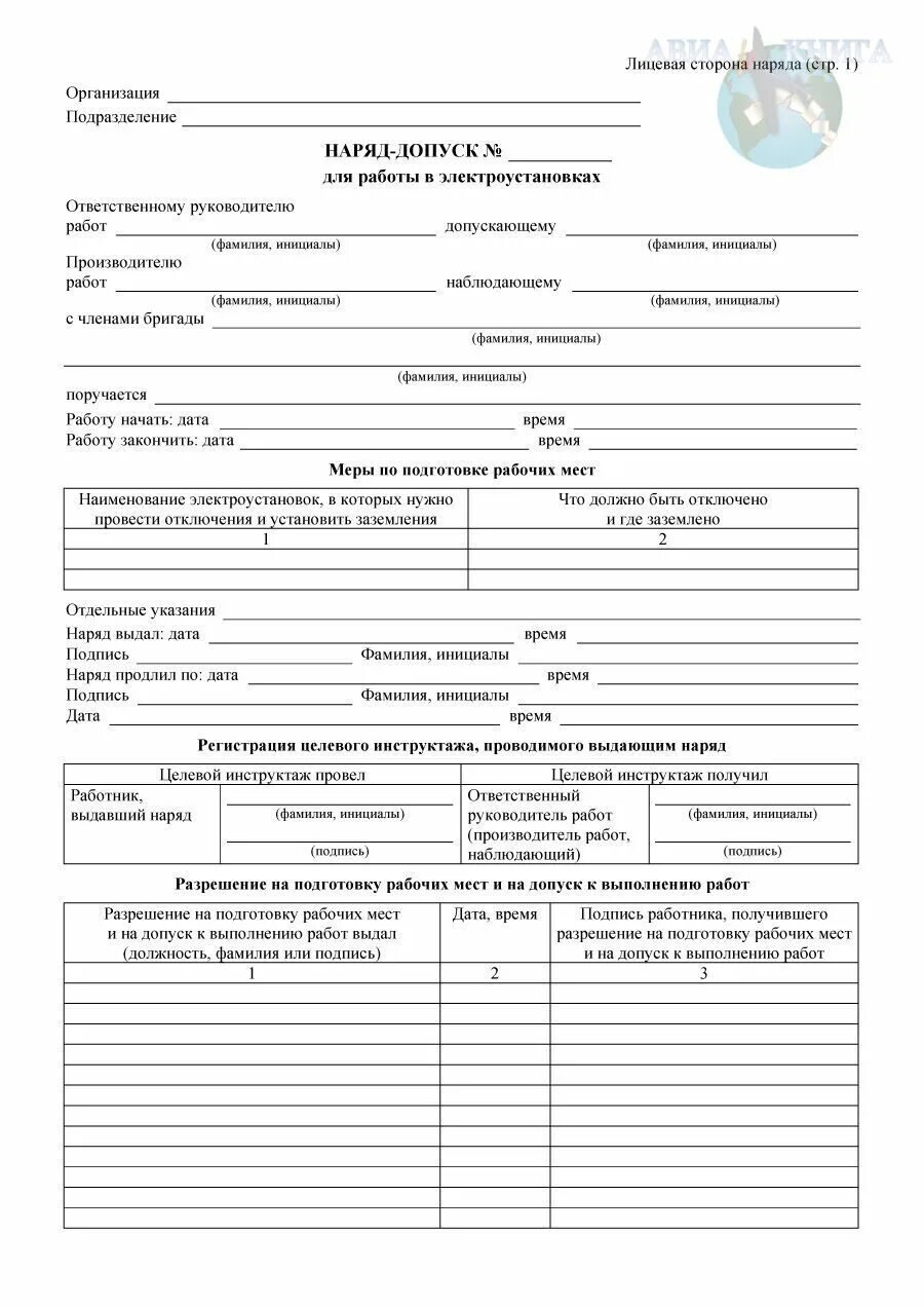
Наряд допуск для работы в электроустановках 2025