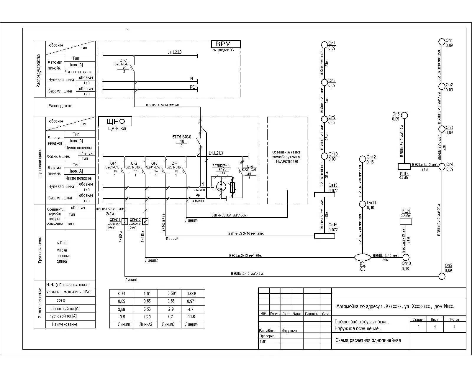
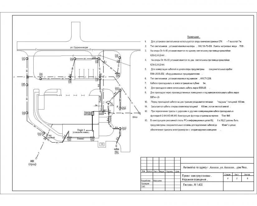
Наружное освещение электроснабжение