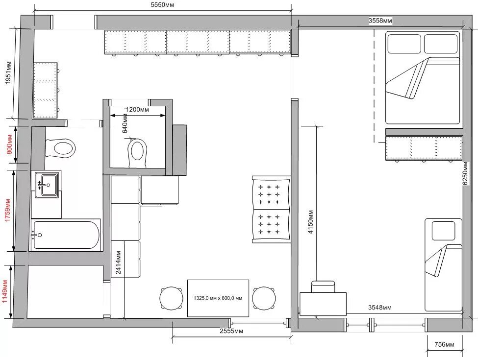
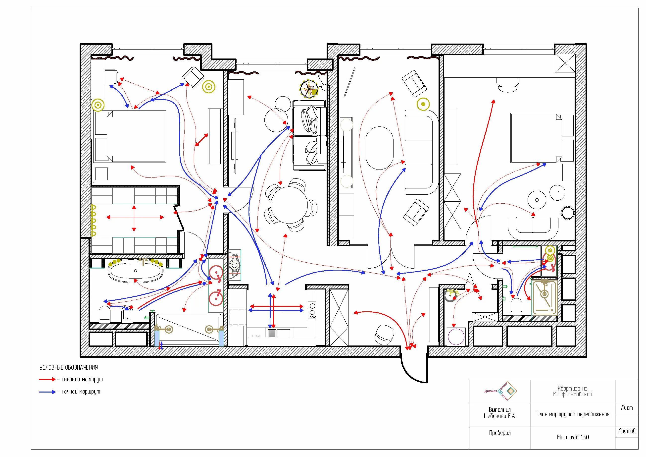
На плане изображена схема квартиры