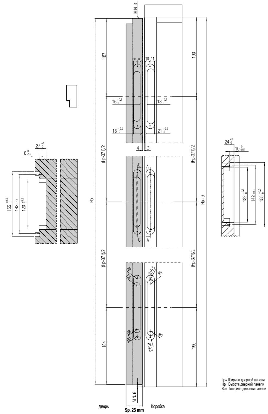
На какой высоте петли на межкомнатных