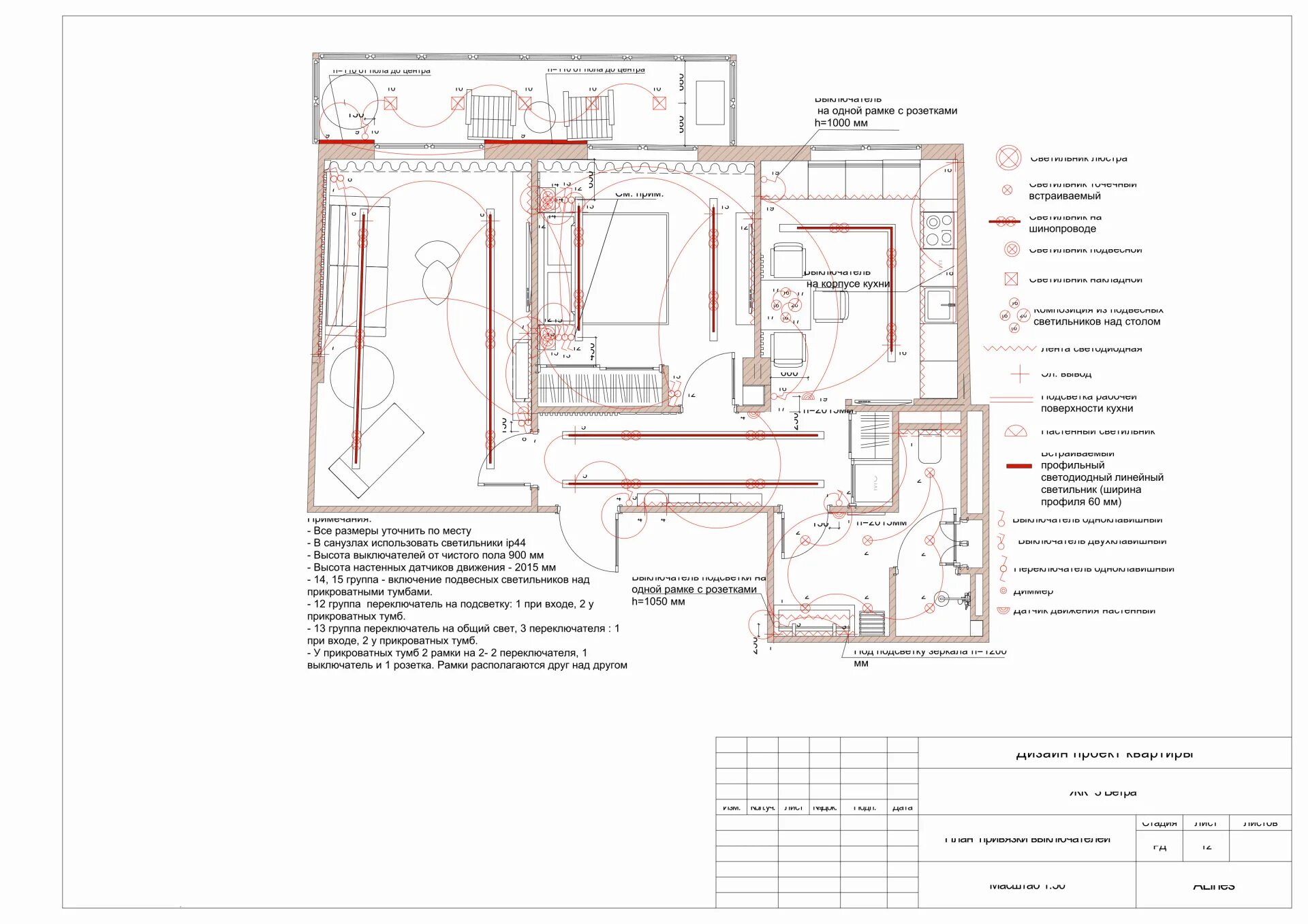
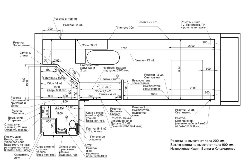
На каком уровне выключатель от пола