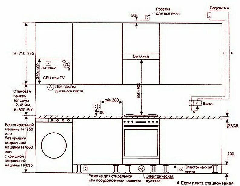
На каком расстоянии устанавливают кухню