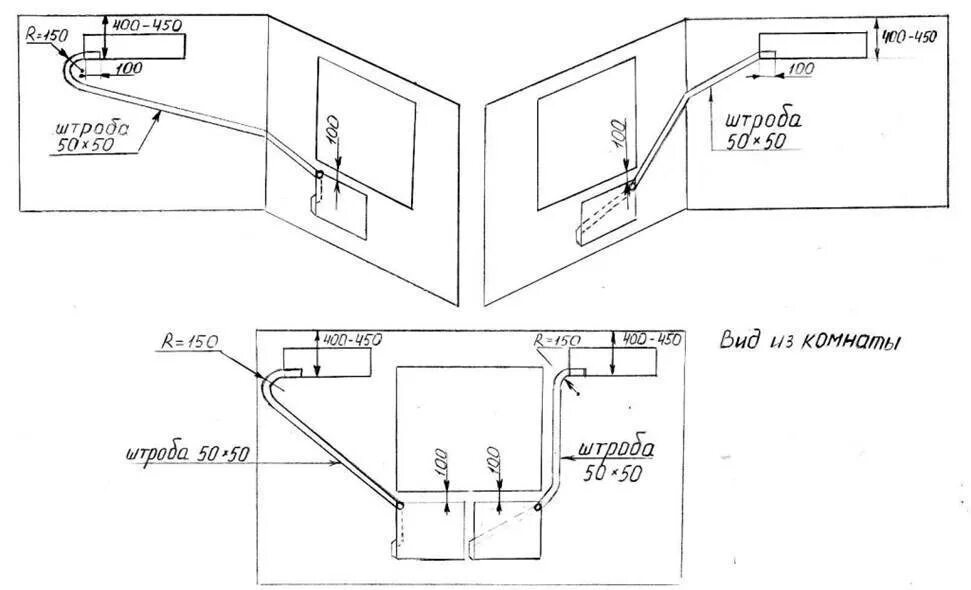
На каком расстоянии устанавливается кондиционер