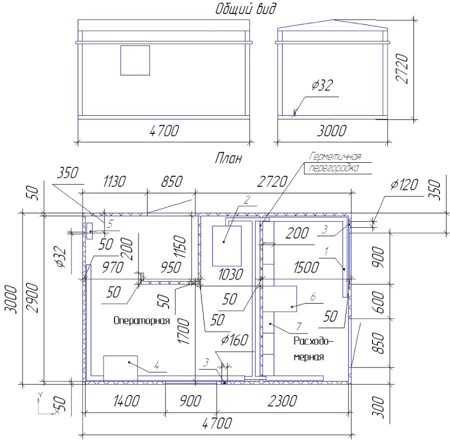
На каком расстоянии ставить бытовку