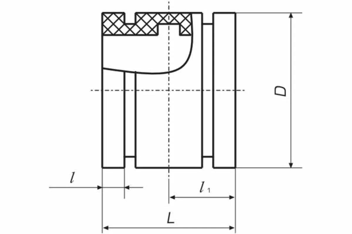
Муфты защитные для прохода через жб колодец