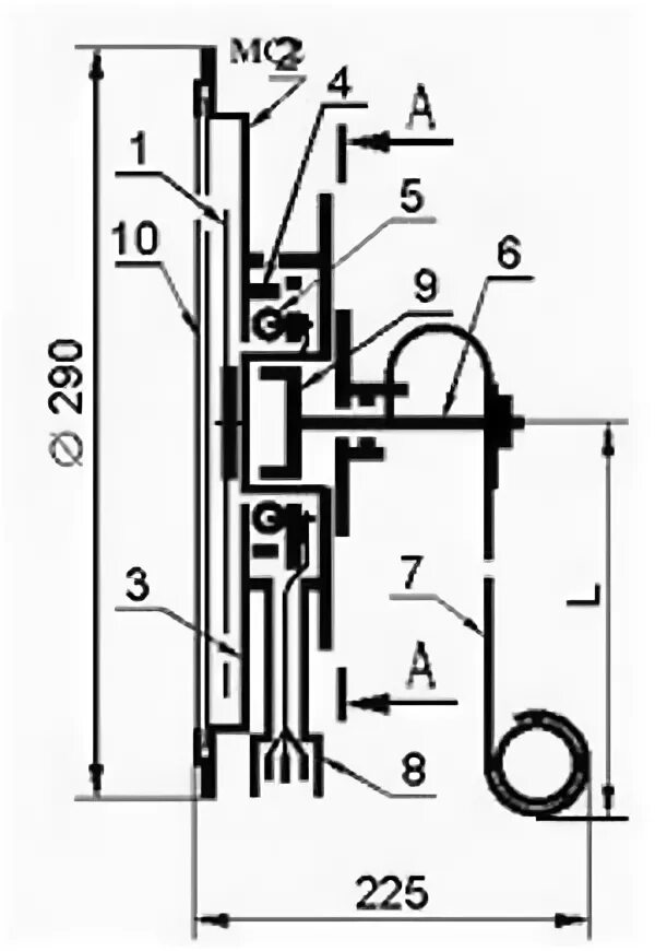
Мс 2 размер