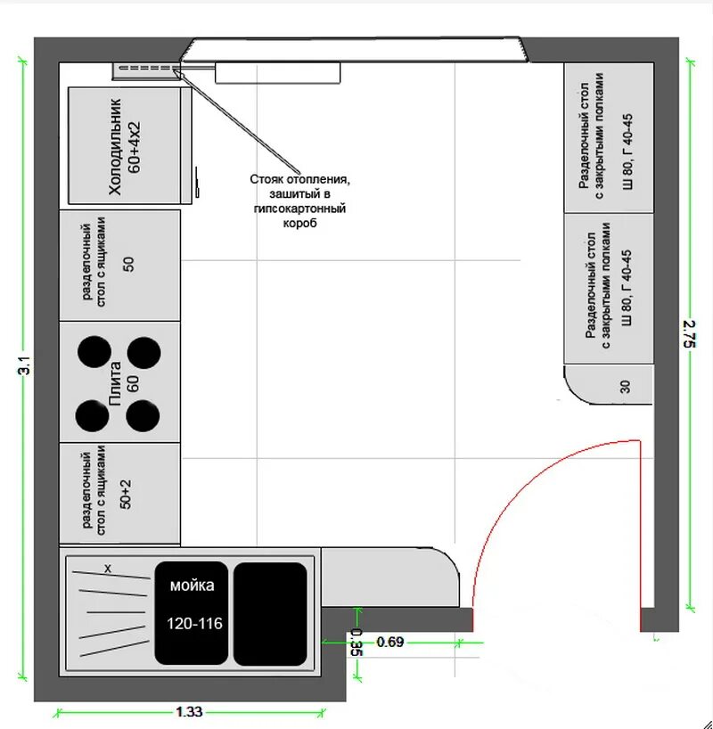
Можно ли ставить холодильник возле