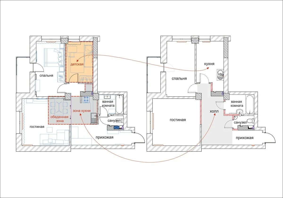
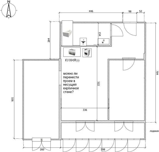
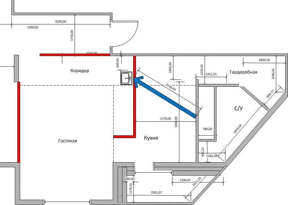
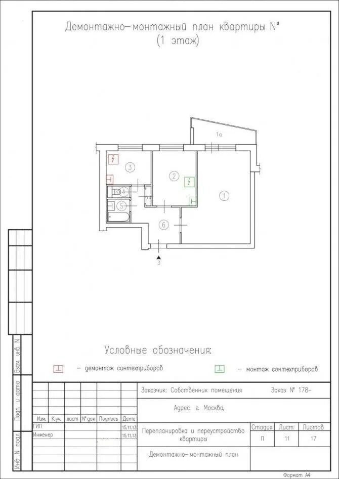
Можно ли перенести кухню в жилую