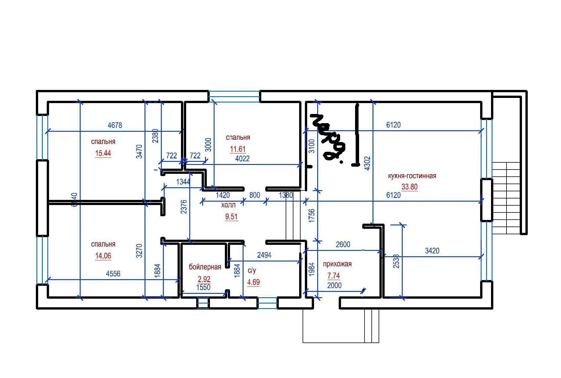
Можно ли объединить