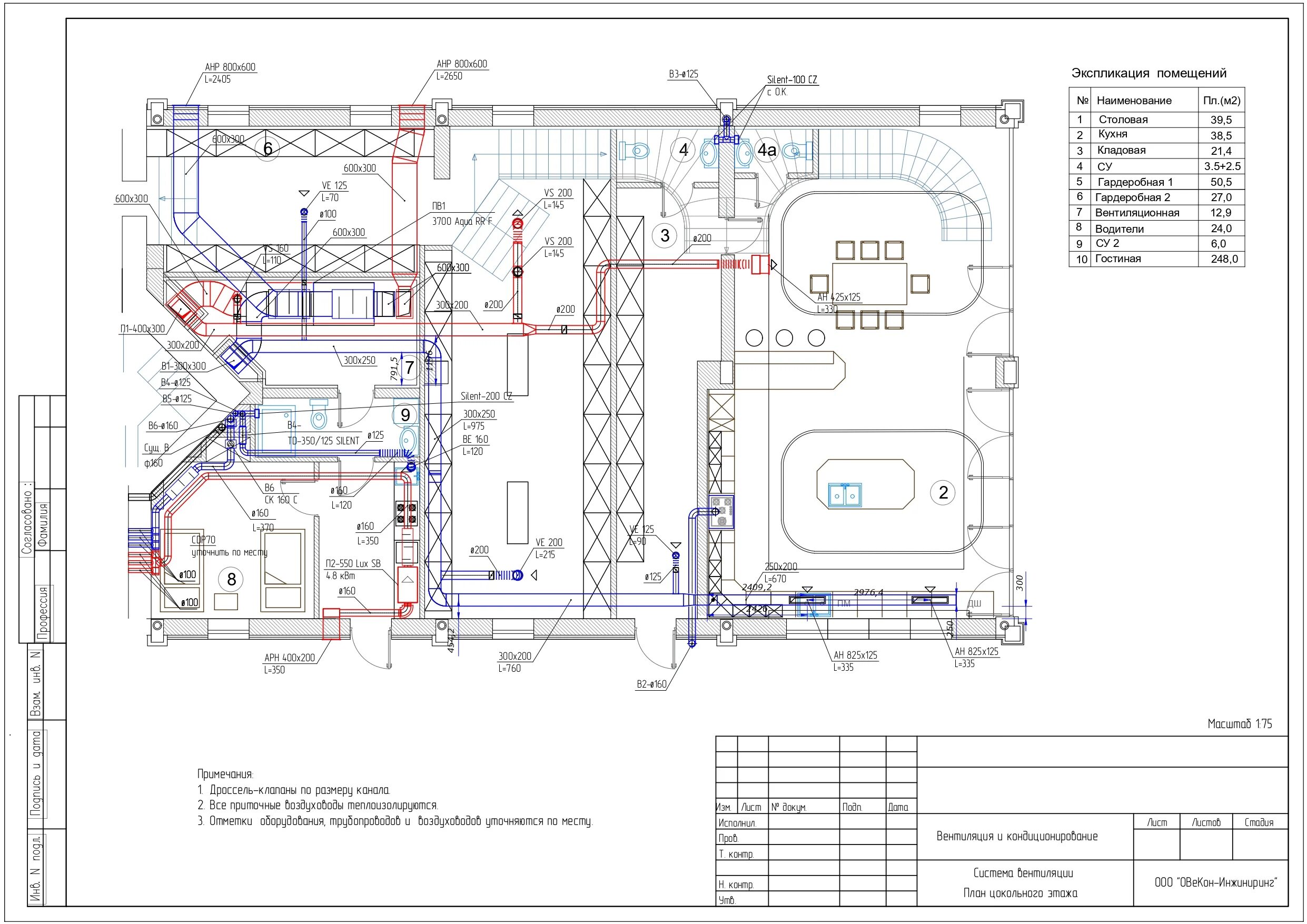
Монтаж проектирование систем вентиляции и кондиционирования