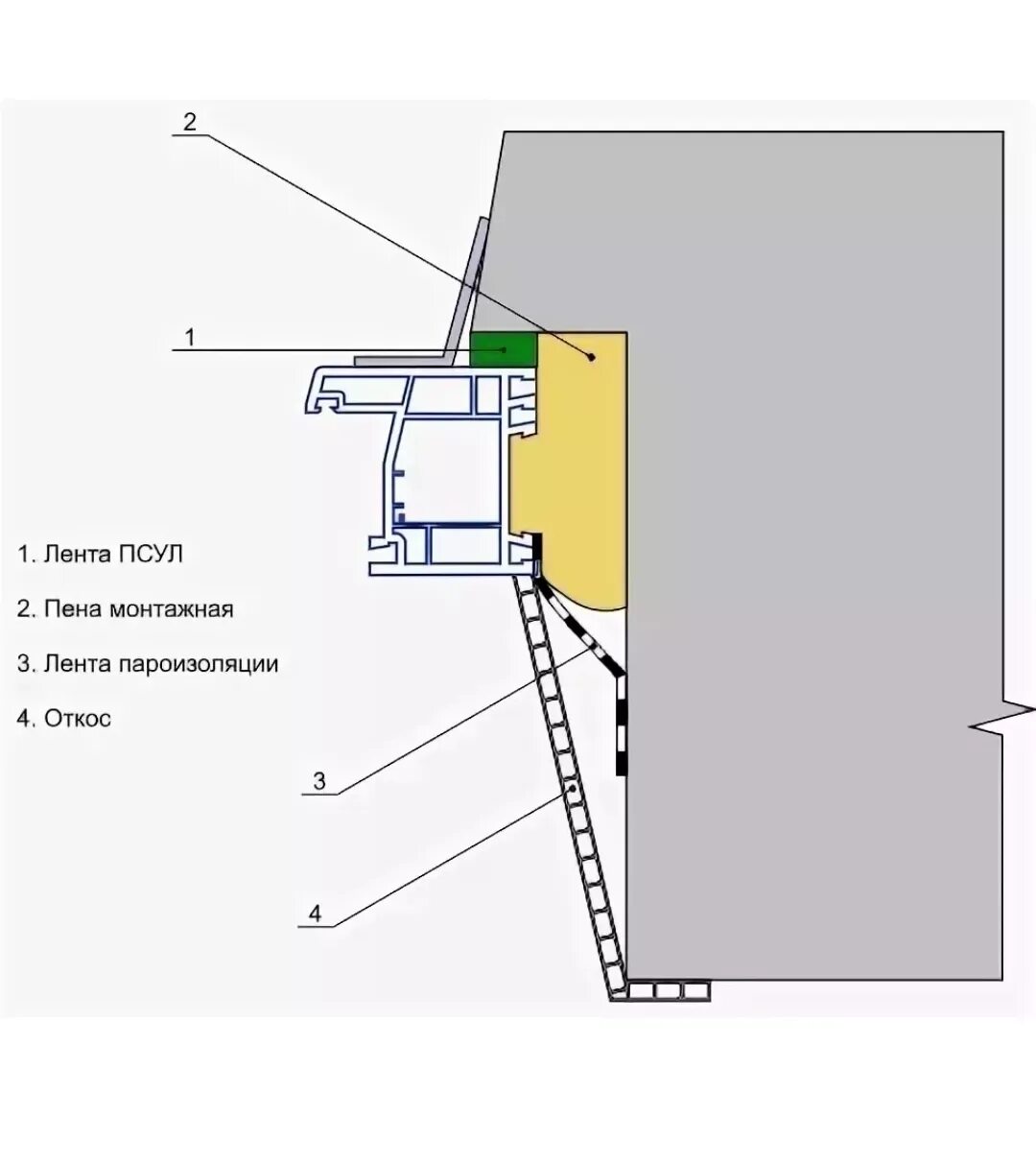
Монтаж откосов из сэндвич панелей