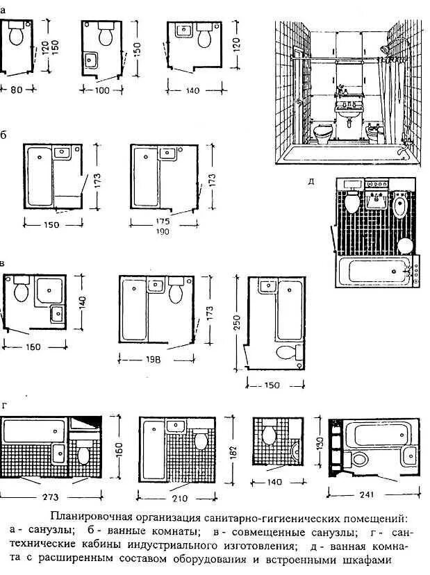
Минимальный размер собственных