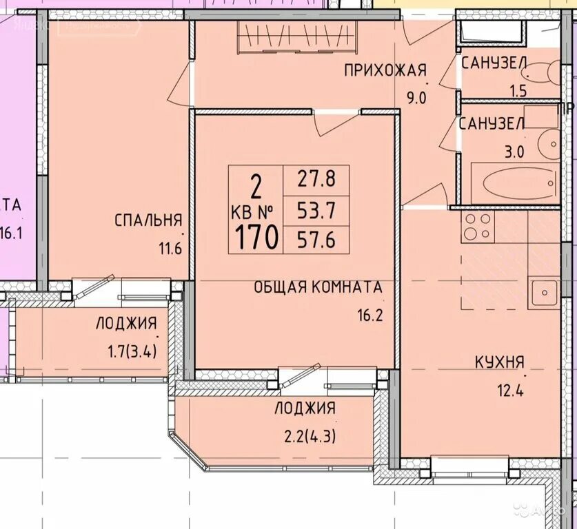
Микрорайон 1 й юго восточный